03-6264-1890
受付時間 9:00 - 18:30 定休日 土日祝
受付時間 9:00 - 18:30 定休日 土日祝
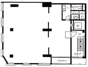
FAMビル(FAM Building) 3階
物件情報
| 所在地 | 東京都台東区浅草橋1丁目25-12 |
|---|---|
| 最寄駅 |
JR中央・総武線 浅草橋駅 2分 都営浅草線 浅草橋駅 2分 |
| 竣工 | 1964年12月 |
| 階数 | 地上6階建て |
| エレベーター | 1基 |
賃貸条件
| 募集区画 | 3階 |
|---|---|
| 賃料 (共益費) | 482,000円(125,970円) |
| 敷金 /礼金 | -/なし |
|
保証金
/敷引/償却 |
6ヶ月/-/- |
| 面積 | 41.99坪 |
| 入居条件 | 即入居 |