シャンヴィラカテリーナ(シャンビラカテリーナ) 3階

最終情報更新日:2026/02/13
ビルコード: 1310400587
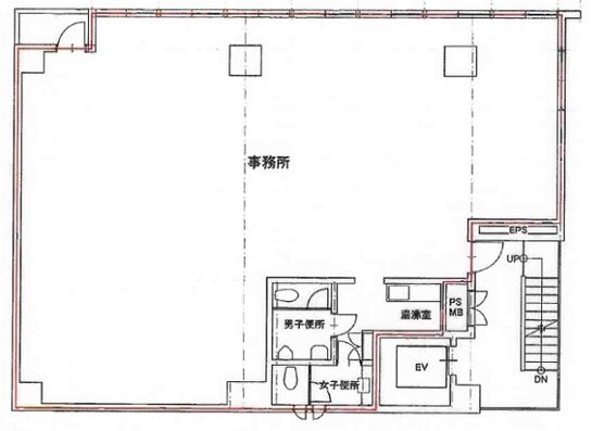
シャンヴィラカテリーナ(シャンビラカテリーナ) 3階 平面図

賃貸条件

所在階 3階
用途 事務所
面積 43.32坪 / 143.2m²
賃料 相談
共益費 121,296円
坪単価 -
預託金 12ヶ月
入居時期 2026年3月上旬
その他費用 償却: なし
更新料・再契約料: なし
天井高 2,480mm
トイレ 男女別

物件概要

所在地 東京都新宿区新宿1丁目16-9
交通
  • 東京メトロ丸ノ内線 新宿御苑前駅 3分
  • 東京メトロ丸ノ内線 新宿三丁目駅 4分
  • JR山手線 新宿駅 12分
規模 地上9階建て
竣工 1987年3月
耐震基準 新耐震基準
構造 鉄骨鉄筋コンクリート(SRC造)
基準階坪数 43.32坪

物件詳細・設備

エレベーター 1基
駐車場 なし
情報通信設備 光ファイバー
空調 個別空調

シャンヴィラカテリーナ(シャンビラカテリーナ)の空室一覧

↓ 募集区画クリックで詳細情報をご覧いただけます

募集区画 面積 用途 賃料+共益費 坪単価(共益費込) 入居時期 平面図 お気に入り
4階 43.32坪 事務所 相談 - 2026年3月上旬
3階 43.32坪 事務所 相談 - 2026年3月上旬

近隣の条件が近い物件

東京都新宿区新宿1丁目4-8

地上9階建て

44.4坪

東京メトロ丸ノ内線 新宿御苑前駅 1分

東京都新宿区新宿1丁目12-1

地上8階建て

43.63坪

東京メトロ丸ノ内線 新宿御苑前駅 3分

東京都新宿区新宿1丁目26-9

地上9階建て

43.11坪

東京メトロ丸ノ内線 新宿御苑前駅 8分

東京都新宿区新宿3丁目12-7(未定)

地上12階建て

44.62坪

東京メトロ丸ノ内線 新宿三丁目駅 1分

東京都新宿区新宿5丁目16-11

地上9階 / 地下1階

43.67坪

東京メトロ丸ノ内線 新宿三丁目駅 3分

東京都新宿区四谷4丁目33-2

地上10階建て

41.1坪

東京メトロ丸ノ内線 新宿御苑前駅 5分

東京都新宿区大京町23-3

地上10階 / 地下1階

43.38坪

東京メトロ丸ノ内線 四谷三丁目駅 8分

東京都新宿区富久町16-5

地上11階 / 地下1階

40.17坪

東京メトロ丸ノ内線 新宿御苑前駅 7分

東京都新宿区新宿1丁目2-9

地上10階建て

40.0坪

東京メトロ丸ノ内線 新宿御苑前駅 1分

※表示金額はすべて「税抜き表示」となっています。 / ※間取図は現況を優先させていただきます。 / ※駐車場は建物設備としての有無のため、有の場合でも賃貸条件としての空きを保証するものではありません。 / ※掲載情報の誤りや変更、未掲載情報の掲載依頼がございましたら、お手数ですが お問い合わせフォーム よりご連絡ください。

掲載物件数:2,405件  4,320区画

お気に入りに追加