NEW

INOビル・大崎(INOビル大崎) 4階401

最終情報更新日:2026/03/18
ビルコード: 1310900154
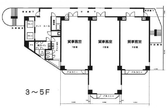
INOビル・大崎(INOビル大崎) 4階401 平面図

賃貸条件

所在階 4階
用途 事務所
面積 21.78坪 / 72.0m²
賃料 326,700円
共益費 賃料に含む
坪単価 15,000円/坪 (共益費込)
預託金 3ヶ月
入居時期 2026年9月上旬
その他費用 償却: 相談
礼金: なし
更新料・再契約料: なし
トイレ 男女別

物件概要

所在地 東京都品川区大崎1丁目20-8
交通
  • JR山手線 大崎駅 2分
規模 地上8階建て
竣工 1986年3月
耐震基準 新耐震基準
構造 鉄骨鉄筋コンクリート(SRC造)
基準階坪数 63.29坪
基準階天井高 2,400mm
延床面積 2,051.66㎡

物件詳細・設備

エレベーター 2基
駐車場 あり
情報通信設備 光ファイバー
空調 個別空調

INOビル・大崎(INOビル大崎)の空室一覧

↓ 募集区画クリックで詳細情報をご覧いただけます

募集区画 面積 用途 賃料+共益費 坪単価(共益費込) 入居時期 平面図 お気に入り
NEW 4階401 21.78坪 事務所 326,700円 15,000円/坪 2026年9月上旬
NEW 3階302 32.39坪 事務所 485,850円 15,000円/坪 2026年6月上旬

近隣の条件が近い物件

東京都品川区東五反田3丁目14-13

地上6階建て

23.52坪

JR山手線 五反田駅 8分

東京都品川区西五反田7丁目22-17

地上13階 / 地下3階

18.38坪 〜 26.34坪

東急池上線 大崎広小路駅 5分

東京都品川区東五反田3丁目1-6

地上9階建て

20.42坪

都営浅草線 高輪台駅 2分

東京都品川区西五反田5丁目6-30

地上3階建て

23.1坪

東急目黒線 不動前駅 4分

東京都品川区戸越3丁目1-18

地上7階建て

18.82坪

都営浅草線 戸越駅 1分

東京都品川区西五反田7丁目21-11

地上8階 / 地下2階

25.28坪

東急目黒線 不動前駅 5分

東京都品川区東五反田1丁目10-9

地上10階 / 地下1階

17.63坪

都営浅草線 五反田駅 2分

※表示金額はすべて「税抜き表示」となっています。 / ※間取図は現況を優先させていただきます。 / ※駐車場は建物設備としての有無のため、有の場合でも賃貸条件としての空きを保証するものではありません。 / ※掲載情報の誤りや変更、未掲載情報の掲載依頼がございましたら、お手数ですが お問い合わせフォーム よりご連絡ください。

掲載物件数:2,340件  4,228区画

お気に入りに追加