03-6264-1890
受付時間 9:00 - 18:30 定休日 土日祝
受付時間 9:00 - 18:30 定休日 土日祝
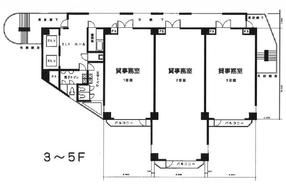
INOビル・大崎(INOビル大崎) 4階401
物件情報
| 所在地 | 東京都品川区大崎1丁目20-8 |
|---|---|
| 最寄駅 |
JR山手線 大崎駅 2分 |
| 竣工 | 1986年3月 |
| 階数 | 地上8階建て |
| エレベーター | 2基 |
賃貸条件
| 募集区画 | 4階401 |
|---|---|
| 賃料 (共益費) | 326,700円(賃料に含む) |
| 敷金 /礼金 | -/なし |
|
保証金
/敷引/償却 |
3ヶ月/-/相談 |
| 面積 | 21.78坪 |
| 入居条件 | 2026年9月上旬 |