
賃貸条件
| 所在階 | 6階 |
|---|---|
| 用途 | 事務所 |
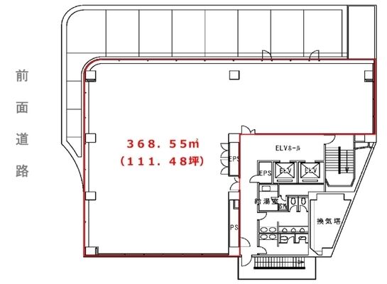
| 面積 | 118.48坪 / 391.669m² |
| 賃料 | 相談 |
| 共益費 | 賃料に含む |
| 坪単価 | - |
| 預託金 | 相談 |
| 入居時期 | 2026年6月下旬 |
| その他費用 | 償却: なし 更新料・再契約料: なし |
| トイレ | 男女別 |
物件概要
| 所在地 | 東京都文京区本郷5丁目33-10 |
|---|---|
| 交通 |
|
| 規模 | 地上6階 / 地下1階 |
| 竣工 | 1992年4月 |
| 耐震基準 | 新耐震基準 |
| 構造 | 鉄骨鉄筋コンクリート(SRC造) |
| 基準階坪数 | 158.39坪 |
| 延床面積 | 3,932.85㎡ |
物件詳細・設備
| エレベーター | 2基 |
|---|---|
| 駐車場 | あり |
| 情報通信設備 | 光ファイバー |
| 空調 | 個別空調 |
| セキュリティ | 機械警備 |
※表⽰⾦額は、敷⾦・保証⾦などの預かり⾦を除き、別途消費税がかかります。 / ※間取図は現況を優先させていただきます。 / ※駐車場は建物設備としての有無のため、有の場合でも賃貸条件としての空きを保証するものではありません。 / ※掲載情報の誤りや変更、未掲載情報の掲載依頼がございましたら、お手数ですが お問い合わせフォームよりご連絡ください。
近隣の条件が近い物件
掲載物件数:2,375件
4,324区画





















建物詳細
いちご本郷ビル(文京区本郷5丁目)は、都営大江戸線 春日駅徒歩3分の賃貸オフィスビルです。
ビルの竣工は1992年4月(新耐震基準)、建物規模は地上6階・地下1階建てです。エレベーターは2基あります。
貸室基準階のフロア面積は158.39坪です。設備面では、機械警備・個別空調・OAフロア・男女別トイレなどが備わっています。
最新の空室状況や賃料・賃貸条件など、お気軽にお問合せ下さい。