03-6264-1890
受付時間 9:00 - 18:30 定休日 土日祝
受付時間 9:00 - 18:30 定休日 土日祝
いちご本郷ビル 6階
物件情報
| 所在地 | 東京都文京区本郷5丁目33-10 |
|---|---|
| 最寄駅 |
都営大江戸線 春日駅 3分 都営三田線 春日駅 3分 |
| 竣工 | 1992年4月 |
| 階数 | 地上6階 / 地下1階 |
| エレベーター | 2基 |
賃貸条件
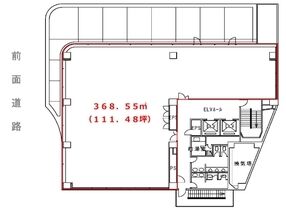
| 募集区画 | 6階 |
|---|---|
| 賃料 (共益費) | 相談(賃料に含む) |
| 敷金 /礼金 | 相談/- |
|
保証金
/敷引/償却 |
-/-/なし |
| 面積 | 118.48坪 |
| 入居条件 | 2026年6月下旬 |