NEW

天王洲オーシャンスクエア 24階

最終情報更新日:2026/02/17
ビルコード: 1310900145
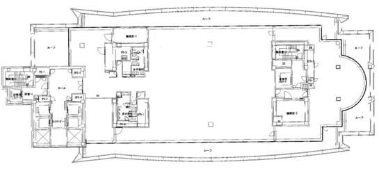
天王洲オーシャンスクエア 24階 平面図

賃貸条件

所在階 24階
用途 事務所
面積 299.81坪 / 991.1m²
賃料 相談
共益費 相談
坪単価 -
預託金 相談
入居時期 2027年8月上旬
天井高 2,700mm
トイレ 男女別
床仕様 OAフロア

物件概要

所在地 東京都品川区東品川2丁目2-20
交通
  • 東京モノレール 天王洲アイル駅 1分
  • 京急本線 新馬場駅 14分
規模 地上25階 / 地下2階
竣工 1994年10月
耐震基準 新耐震基準
構造 鉄骨(S造)
基準階坪数 445.75坪
基準階天井高 2,700mm
延床面積 60,853.85㎡

物件詳細・設備

エレベーター 6基
駐車場 あり 172台
情報通信設備 光ファイバー
空調 セントラル空調
セキュリティ 機械警備・有人管理

天王洲オーシャンスクエアの空室一覧

↓ 募集区画クリックで詳細情報をご覧いただけます

募集区画 面積 用途 賃料+共益費 坪単価(共益費込) 入居時期 平面図 お気に入り
NEW 25階 274.65坪 事務所 相談 - 2027年8月上旬
NEW 24階 299.81坪 事務所 相談 - 2027年8月上旬
NEW 23階 426.74坪 事務所 相談 - 2027年8月上旬
21階 125.37坪 事務所 相談 - 2026年4月上旬
5階 134.58坪 事務所 相談 - 即入居
SC棟1階108C 23.75坪 店舗、その他 相談 - 即入居

近隣の条件が近い物件

東京都品川区東品川2丁目3-12

地上30階 / 地下2階

284.14坪

東京モノレール 天王洲アイル駅 1分

東京都目黒区下目黒1丁目8-1

地上19階 / 地下3階

300.05坪

JR山手線 目黒駅 4分

東京都品川区東品川2丁目2-8

地上28階 / 地下2階

252.4坪 〜 326.45坪

東京モノレール 天王洲アイル駅 1分

東京都中央区晴海1丁目8-11

地上39階 / 地下4階

301.85坪

都営大江戸線 勝どき駅 4分

東京都渋谷区渋谷2丁目12-15

地上8階 / 地下2階

299.51坪

JR山手線 渋谷駅 7分

東京都江東区豊洲1丁目1-1

地上30階 / 地下3階

301.58坪

東京メトロ有楽町線 豊洲駅 11分

東京都港区虎ノ門2丁目3-17

地上24階 / 地下4階

296.8坪

東京メトロ日比谷線 虎ノ門ヒルズ駅 1分

東京都江東区豊洲3丁目2-20

地上15階 / 地下2階

302.58坪

東京メトロ有楽町線 豊洲駅 1分

東京都渋谷区神宮前1丁目5-8

地上23階 / 地下3階

300.66坪

東京メトロ千代田線 明治神宮前<原宿>駅 3分

東京都港区高輪3丁目466-5(地番) アベニュー高輪

地上10階建て

278.79坪

JR山手線 品川駅 4分

東京都品川区北品川4丁目7-35

地上21階 / 地下3階

274.4坪

JR山手線 品川駅 10分

東京都港区新橋6丁目1-11

地上19階 / 地下2階

293.17坪

都営三田線 御成門駅 2分

東京都港区海岸3丁目2-8

地上7階 / 地下1階

283.03坪

ゆりかもめ 芝浦ふ頭駅 4分

東京都港区南青山2丁目2-3

地上9階建て

304.55坪

東京メトロ銀座線 青山一丁目駅 1分

東京都江東区新砂1丁目6-35

地上7階建て

300.0坪

東京メトロ東西線 東陽町駅 9分

※表示金額はすべて「税抜き表示」となっています。 / ※間取図は現況を優先させていただきます。 / ※駐車場は建物設備としての有無のため、有の場合でも賃貸条件としての空きを保証するものではありません。 / ※掲載情報の誤りや変更、未掲載情報の掲載依頼がございましたら、お手数ですが お問い合わせフォーム よりご連絡ください。

掲載物件数:2,409件  4,378区画

お気に入りに追加