NEW

天王洲オーシャンスクエア 25階

最終情報更新日:2026/02/17
ビルコード: 1310900145
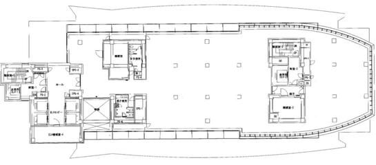
天王洲オーシャンスクエア 25階 平面図

賃貸条件

所在階 25階
用途 事務所
面積 274.65坪 / 907.93m²
賃料 相談
共益費 相談
坪単価 -
預託金 相談
入居時期 2027年8月上旬
天井高 2,700mm
トイレ 男女別
床仕様 OAフロア

物件概要

所在地 東京都品川区東品川2丁目2-20
交通
  • 東京モノレール 天王洲アイル駅 1分
  • 京急本線 新馬場駅 14分
規模 地上25階 / 地下2階
竣工 1994年10月
耐震基準 新耐震基準
構造 鉄骨(S造)
基準階坪数 445.75坪
基準階天井高 2,700mm
延床面積 60,853.85㎡

物件詳細・設備

エレベーター 6基
駐車場 あり 172台
情報通信設備 光ファイバー
空調 セントラル空調
セキュリティ 機械警備・有人管理

天王洲オーシャンスクエアの空室一覧

↓ 募集区画クリックで詳細情報をご覧いただけます

募集区画 面積 用途 賃料+共益費 坪単価(共益費込) 入居時期 平面図 お気に入り
NEW 25階 274.65坪 事務所 相談 - 2027年8月上旬
NEW 24階 299.81坪 事務所 相談 - 2027年8月上旬
NEW 23階 426.74坪 事務所 相談 - 2027年8月上旬
21階 125.37坪 事務所 相談 - 2026年4月上旬
5階 134.58坪 事務所 相談 - 即入居
SC棟1階108C 23.75坪 店舗、その他 相談 - 即入居

近隣の条件が近い物件

東京都品川区北品川4丁目7-35

地上21階 / 地下3階

274.4坪

JR山手線 品川駅 10分

東京都品川区東品川2丁目3-12

地上30階 / 地下2階

284.14坪

東京モノレール 天王洲アイル駅 1分

東京都港区高輪3丁目466-5(地番) アベニュー高輪

地上10階建て

278.79坪

JR山手線 品川駅 4分

東京都品川区東品川2丁目2-8

地上28階 / 地下2階

252.4坪

東京モノレール 天王洲アイル駅 1分

東京都港区海岸3丁目2-8

地上7階 / 地下1階

268.25坪 〜 283.03坪

ゆりかもめ 芝浦ふ頭駅 4分

東京都中央区勝どき3丁目12-1

地上18階 / 地下1階

274.31坪

都営大江戸線 勝どき駅 7分

東京都目黒区下目黒1丁目8-1

地上19階 / 地下3階

280.33坪 〜 281.87坪

JR山手線 目黒駅 4分

東京都品川区勝島1丁目6-22

地上8階建て

264.14坪

東京モノレール 大井競馬場前駅 4分

東京都中央区月島1丁目15-7

地上13階 / 地下2階

272.42坪

東京メトロ有楽町線 月島駅 4分

東京都中央区銀座6丁目18-2

地上17階 / 地下5階

271.21坪

東京メトロ日比谷線 東銀座駅 3分

東京都港区六本木6丁目10-1

地上54階 / 地下6階

280.0坪

東京メトロ日比谷線 六本木駅 0分

東京都品川区南大井6丁目26-1

地上18階 / 地下3階

267.47坪

JR京浜東北線 大森駅 3分

※表示金額はすべて「税抜き表示」となっています。 / ※間取図は現況を優先させていただきます。 / ※駐車場は建物設備としての有無のため、有の場合でも賃貸条件としての空きを保証するものではありません。 / ※掲載情報の誤りや変更、未掲載情報の掲載依頼がございましたら、お手数ですが お問い合わせフォーム よりご連絡ください。

掲載物件数:2,413件  4,390区画

お気に入りに追加