
賃貸条件
| 所在階 | 25階 |
|---|---|
| 用途 | 事務所 |
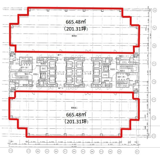
| 面積 | 402.62坪 / 1330.97m² |
| 賃料 | 相談 |
| 共益費 | 賃料に含む |
| 坪単価 | - |
| 預託金 | 相談 |
| 入居時期 | 2026年12月上旬 |
| その他費用 | 償却: なし 更新料・再契約料: なし |
| 天井高 | 2,700mm |
| トイレ | 男女別 |
| 床仕様 | OAフロア |
物件概要
| 所在地 | 東京都中野区本町1丁目32-2 |
|---|---|
| 交通 |
|
| 規模 | 地上29階 / 地下2階 |
| 竣工 | 1997年3月 |
| 耐震基準 | 新耐震基準 |
| 構造 | 鉄骨(S造) |
| 基準階坪数 | 412.77坪 |
| 基準階天井高 | 2,700mm |
物件詳細・設備
| エレベーター | 17基 |
|---|---|
| 駐車場 | あり 機械式・平面式 257台 |
| 情報通信設備 | 光ファイバー |
| 空調 | 個別空調 |
| セキュリティ | 機械警備・有人管理 |
| 建物設備 | 2階に職域食堂あり |
※表⽰⾦額は、敷⾦・保証⾦などの預かり⾦を除き、別途消費税がかかります。 / ※間取図は現況を優先させていただきます。 / ※駐車場は建物設備としての有無のため、有の場合でも賃貸条件としての空きを保証するものではありません。 / ※掲載情報の誤りや変更、未掲載情報の掲載依頼がございましたら、お手数ですが お問い合わせフォームよりご連絡ください。
近隣の条件が近い物件
掲載物件数:2,434件
4,413区画















































































建物詳細
ハーモニータワー(東京都中野区本町1丁目32番2号)は「中野坂上」駅直結の大規模複合ビルです。竣工は1997年3月1日、規模は地上29階・地下2階です。エレベーターは計17基設置されています。
基準階貸室面積はワンフロア約413坪、貸室室内は天井高2.7mの無柱空間。OA床・個別空調に対応。館内には貸会議室や貸ホール等の利便施設が充実しています。
最新の募集状況や賃料・賃貸条件など、お気軽にお問合せ下さい。