NEW

太陽生命品川ビル 26階

品川駅コンコース直結。品川グランドコモンズ内の高層オフィスビル
最終情報更新日:2026/03/03
ビルコード: 1310300988
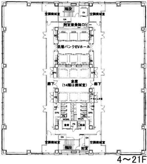
太陽生命品川ビル 26階 平面図
建物詳細

太陽生命品川ビル(港区港南2丁目16-2)は、JR山手線 品川駅徒歩1分の賃貸オフィスビルです。

ビルの竣工は2003年3月(新耐震基準)、建物規模は地上30階・地下3階建てです。

エレベーターは12基あります。基準階貸室面積は273.65坪、天井高は2700mm、機械警備・OAフロア・男女別トイレなどの設備仕様となっております。

最新の空室状況や賃料・賃貸条件など、お気軽にお問合せ下さい。

賃貸条件

所在階 26階
用途 事務所、店舗
面積 309.96坪 / 1024.66m²
賃料 相談
共益費 2,169,720円
坪単価 -
預託金 12ヶ月
入居時期 2026年10月上旬
天井高 2,700mm
トイレ 男女別
床仕様 OAフロア

物件概要

所在地 東京都港区港南2丁目16-2
交通
  • JR山手線 品川駅 1分
規模 地上30階 / 地下3階
竣工 2003年3月
耐震基準 新耐震基準
構造 鉄骨(S造)
基準階坪数 273.65坪
基準階天井高 2,700mm
延床面積 57,273.8㎡

物件詳細・設備

エレベーター 12基
駐車場 あり 機械式・平面式併設
情報通信設備 光ファイバー
空調 セントラル空調
セキュリティ 機械警備
建物設備 4階に貸会議室設置

太陽生命品川ビルの空室一覧

↓ 募集区画クリックで詳細情報をご覧いただけます

募集区画 面積 用途 賃料+共益費 坪単価(共益費込) 入居時期 平面図 お気に入り
NEW 26階 309.96坪 事務所、店舗 相談 - 2026年10月上旬

近隣の条件が近い物件

東京都品川区東品川2丁目2-20

地上25階 / 地下2階

299.81坪

東京モノレール 天王洲アイル駅 1分

東京都品川区東品川2丁目2-8

地上28階 / 地下2階

326.45坪

東京モノレール 天王洲アイル駅 1分

東京都目黒区下目黒1丁目8-1

地上19階 / 地下3階

300.05坪 〜 323.89坪

JR山手線 目黒駅 4分

東京都目黒区三田1丁目7-13

地上6階 / 地下1階

319.0坪

JR山手線 目黒駅 1分

東京都港区虎ノ門4丁目3-1

地上37階 / 地下2階

315.8坪

東京メトロ日比谷線 神谷町駅 3分

東京都港区高輪3丁目466-5(地番) アベニュー高輪

地上10階建て

278.79坪

JR山手線 品川駅 4分

東京都品川区東品川2丁目3-12

地上30階 / 地下2階

284.14坪

東京モノレール 天王洲アイル駅 1分

東京都中央区築地3丁目5-10

地上7階 / 地下3階

306.72坪

東京メトロ日比谷線 築地駅 2分

東京都港区南青山2丁目2-3

地上9階建て

304.55坪

東京メトロ銀座線 青山一丁目駅 1分

東京都中央区八重洲1丁目9

地上51階 / 地下4階

312.6坪

JR山手線 東京駅 0分

東京都品川区北品川4丁目7-35

地上21階 / 地下3階

274.4坪

JR山手線 品川駅 10分

東京都港区南青山3丁目8-38

地上9階 / 地下1階

316.56坪

東京メトロ銀座線 表参道駅 4分

東京都港区三田1丁目4-28

地上26階 / 地下3階

326.38坪

都営大江戸線 赤羽橋駅 3分

※表示金額はすべて「税抜き表示」となっています。 / ※間取図は現況を優先させていただきます。 / ※駐車場は建物設備としての有無のため、有の場合でも賃貸条件としての空きを保証するものではありません。 / ※掲載情報の誤りや変更、未掲載情報の掲載依頼がございましたら、お手数ですが お問い合わせフォーム よりご連絡ください。

掲載物件数:2,400件  4,312区画

お気に入りに追加