NEW

ASKビル(江東区) 4階403

「東陽町」駅 徒歩2分!1階はコンビニ(ファミリーマート)です。
最終情報更新日:2026/03/05
ビルコード: 1310800012
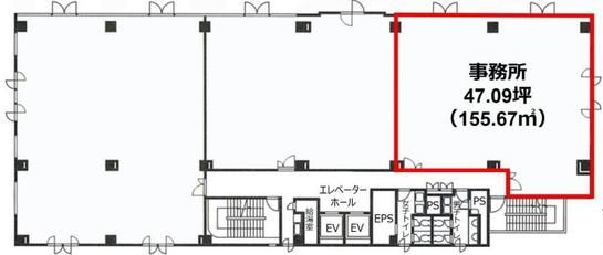
ASKビル(江東区) 4階403 平面図

賃貸条件

所在階 4階 居抜き
用途 事務所
面積 47.09坪 / 155.66m²
賃料 相談
共益費 150,688円
坪単価 -
預託金 6ヶ月
入居時期 2026年6月上旬
その他費用 償却: なし
礼金: なし
更新料・再契約料: なし
天井高 2,600mm
トイレ 男女別

物件概要

所在地 東京都江東区東陽2丁目4-46
交通
  • 東京メトロ東西線 東陽町駅 2分
規模 地上5階建て
竣工 1989年7月
耐震基準 新耐震基準
構造 鉄筋コンクリート(RC造)
基準階坪数 113.0坪
基準階天井高 2,570mm
延床面積 3,106.74㎡

物件詳細・設備

エレベーター 2基
駐車場 あり 平面式 10台
情報通信設備 光ファイバー(MDFまで)
空調 個別空調
セキュリティ 機械警備
リニューアル履歴 2022年10月 外壁改修工事実施済
2023年5月 共用部(廊下・給湯室・トイレ)リニューアル済

ASKビル(江東区)の空室一覧

↓ 募集区画クリックで詳細情報をご覧いただけます

募集区画 面積 用途 賃料+共益費 坪単価(共益費込) 入居時期 平面図 お気に入り
NEW 4階403 居抜き 47.09坪 事務所 相談 - 2026年6月上旬

近隣の条件が近い物件

東京都江東区富岡1丁目12-4

地上6階 / 地下1階

45.66坪

東京メトロ東西線 門前仲町駅 1分

東京都江東区木場1丁目5-25

地上21階 / 地下1階

52.21坪

東京メトロ東西線 木場駅 2分

東京都江東区東陽7丁目1-1

地上8階建て

57.27坪

東京メトロ東西線 東陽町駅 7分

東京都江東区新砂1丁目6-35

地上7階建て

59.02坪

東京メトロ東西線 東陽町駅 9分

東京都江東区永代2丁目31-1

地上8階 / 地下1階

49.92坪

東京メトロ東西線 門前仲町駅 3分

東京都墨田区江東橋3丁目13-6

地上9階 / 地下1階

45.72坪 〜 50.51坪

JR中央・総武線 錦糸町駅 1分

東京都中央区日本橋小網町3-17

地上7階建て

48.05坪

東京メトロ日比谷線 茅場町駅 5分

東京都江東区東雲1丁目9-20

地上2階建て

50.91坪

東京メトロ有楽町線 辰巳駅 6分

東京都墨田区両国4丁目36-9

地上5階 / 地下1階

45.98坪

都営大江戸線 両国駅 2分

東京都中央区日本橋箱崎町10-2

地上7階 / 地下1階

49.39坪

東京メトロ半蔵門線 水天宮前駅 6分

東京都中央区日本橋浜町2丁目36-8

地上6階建て

48.12坪

都営新宿線 浜町駅 1分

東京都中央区湊1丁目2-10

地上7階建て

46.5坪

JR京葉線 八丁堀駅 2分

東京都江東区亀戸7丁目10-1

地上7階建て

45.26坪

JR中央・総武線 亀戸駅 6分

東京都中央区日本橋箱崎町25-7

地上9階 / 地下1階

49.91坪

東京メトロ半蔵門線 水天宮前駅 1分

東京都中央区入船2丁目3-7

地上8階建て

47.67坪

東京メトロ有楽町線 新富町駅 3分

東京都中央区入船3丁目10-7

地上7階建て

48.2坪

東京メトロ有楽町線 新富町駅 3分

東京都中央区日本橋蛎殻町1丁目4-1

地上8階 / 地下1階

49.06坪

東京メトロ日比谷線 茅場町駅 5分

東京都中央区八丁堀2丁目21-2

地上9階 / 地下1階

48.24坪

東京メトロ日比谷線 八丁堀駅 1分

※表示金額はすべて「税抜き表示」となっています。 / ※間取図は現況を優先させていただきます。 / ※駐車場は建物設備としての有無のため、有の場合でも賃貸条件としての空きを保証するものではありません。 / ※掲載情報の誤りや変更、未掲載情報の掲載依頼がございましたら、お手数ですが お問い合わせフォーム よりご連絡ください。

掲載物件数:2,401件  4,337区画

お気に入りに追加