NEW

いちご永代ビル 2階

最終情報更新日:2025/12/02
ビルコード:1310800006
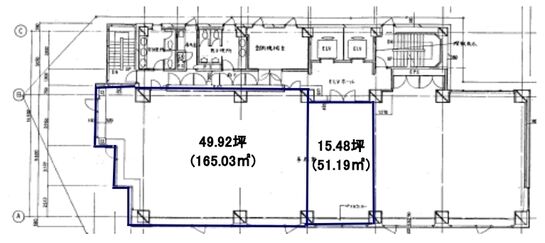
いちご永代ビル 2階 平面図
建物詳細

いちご永代ビル(江東区永代2丁目)は、門前仲町駅徒歩3分の賃貸オフィスビルです。

建物の規模は地上8階・地下1階建て、竣工は1992年6月(新耐震基準)です。エレベーターは2基あります。

基準階のフロア面積は103.56坪、天井高は2600mmです。機械警備・個別空調・OAフロア・男女別トイレなどの設備が整っています。

最新の空室状況や賃料・賃貸条件など、お気軽にお問合せ下さい。

賃貸条件

所在階2階
用途事務所
面積49.92坪 / 165.02m²
賃料相談
共益費賃料に含む
坪単価-
預託金相談
入居時期2026年4月上旬
トイレ男女別

物件概要

所在地東京都江東区永代2丁目31-1
交通
  • 東京メトロ東西線 門前仲町駅 3分
規模地上8階 / 地下1階
竣工1992年6月
耐震基準新耐震基準
構造鉄骨鉄筋コンクリート(SRC造)
基準階坪数103.56坪
基準階天井高2,600mm
延床面積4,025.44㎡

物件詳細・設備

エレベーター2基
駐車場あり 機械式
情報通信設備光ファイバー(MDFまで)
空調個別空調
セキュリティ機械警備

いちご永代ビルの空室一覧

↓ 募集区画クリックで詳細情報をご覧いただけます

募集区画面積用途賃料+共益費坪単価(共益費込)入居時期平面図お気に入り
NEW2階49.92坪事務所相談-2026年4月上旬
2階15.48坪事務所相談-2026年4月上旬

※表⽰⾦額は、敷⾦・保証⾦などの預かり⾦を除き、別途消費税がかかります。 / ※間取図は現況を優先させていただきます。 / ※駐車場は建物設備としての有無のため、有の場合でも賃貸条件としての空きを保証するものではありません。 / ※掲載情報の誤りや変更、未掲載情報の掲載依頼がございましたら、お手数ですが お問い合わせフォームよりご連絡ください。

近隣の条件が近い物件

東京都中央区日本橋箱崎町25-7

地上9階 / 地下1階

49.91坪

東京メトロ半蔵門線 水天宮前駅 1分

東京都江東区佐賀1丁目4-9

地上9階 / 地下1階

54.62坪

東京メトロ東西線 門前仲町駅 7分

東京都中央区日本橋蛎殻町2丁目10-11

地上7階建て

49.39坪

東京メトロ半蔵門線 水天宮前駅 4分

東京都江東区富岡1丁目12-4

地上6階 / 地下1階

45.66坪

東京メトロ東西線 門前仲町駅 1分

東京都中央区日本橋小網町3-17

地上7階建て

48.05坪

東京メトロ日比谷線 茅場町駅 5分

東京都中央区日本橋箱崎町5-4

地上7階建て

52.8坪

東京メトロ半蔵門線 水天宮前駅 7分

東京都中央区日本橋茅場町3丁目2-2

地上7階建て

50.0坪

東京メトロ日比谷線 茅場町駅 3分

東京都中央区八丁堀2丁目21-2

地上9階 / 地下1階

48.24坪

東京メトロ日比谷線 八丁堀駅 1分

東京都中央区日本橋茅場町1丁目9-2

地上9階 / 地下1階

48.0坪

東京メトロ日比谷線 茅場町駅 1分

東京都中央区日本橋人形町1丁目19-5

地上10階建て

50.9坪

東京メトロ日比谷線 人形町駅 1分

東京都江東区木場1丁目5-25

地上21階 / 地下1階

52.21坪

東京メトロ東西線 木場駅 2分

東京都中央区新川1丁目16-4

地上9階建て

54.93坪

東京メトロ日比谷線 茅場町駅 6分

東京都中央区日本橋浜町2丁目35-2

地上11階建て

49.32坪 〜 49.48坪

都営新宿線 浜町駅 2分

東京都中央区築地7丁目2-1

地上7階建て

49.72坪 〜 50.96坪

東京メトロ日比谷線 築地駅 4分

東京都中央区湊1丁目2-10

地上7階建て

46.5坪

JR京葉線 八丁堀駅 2分

東京都中央区京橋3丁目14-6

地上9階 / 地下1階

49.82坪

都営浅草線 宝町駅 1分

東京都中央区日本橋3丁目12-2

地上9階 / 地下4階

51.33坪

東京メトロ銀座線 日本橋駅 3分

掲載物件数:2,361件  4,303区画

お気に入りに追加