NBF池袋イーストの空室一覧
↓ 募集区画クリックで詳細情報をご覧いただけます
| 募集区画 | 面積 | 用途 | 賃料+共益費 | 坪単価(共益費込) | 入居時期 | 平面図 | お気に入り |
|---|---|---|---|---|---|---|---|
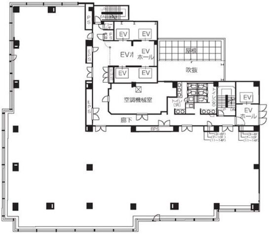
| NEW3階301 | 71.82坪 | 事務所 | 相談 | - | 2026年6月上旬 |
※表⽰⾦額は、敷⾦・保証⾦などの預かり⾦を除き、別途消費税がかかります。 / ※間取図は現況を優先させていただきます。 / ※駐車場は建物設備としての有無のため、有の場合でも賃貸条件としての空きを保証するものではありません。 / ※掲載情報の誤りや変更、未掲載情報の掲載依頼がございましたら、お手数ですが お問い合わせフォームよりご連絡ください。
近隣の条件が近い物件
掲載物件数:2,402件
4,364区画
































建物詳細
NBF池袋イースト(東京都豊島区東池袋3丁目4-3)は、最寄り駅「池袋」駅から徒歩約6分の地上14階・地下1階建ての賃貸オフィスビルです。竣工は1993年4月、エレベーターは5基あります。
基準階貸室面積は約245.34坪、分割区画の募集の場合もあります。エレベーターやお手洗い等の共用部は執務室の外に配置されています。個別空調・OAフロア・男女別トイレ等の設備仕様、機械警備と有人管理の体制となっております。
最新の空室状況・賃貸条件などお気軽にお問合せ下さい。