
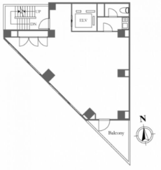
賃貸条件
| 所在階 | 4階 |
|---|---|
| 用途 | 事務所 |
| 面積 | 17.69坪 / 58.47m² |
| 賃料 | 353,800円 |
| 共益費 | 賃料に含む |
| 坪単価 | 20,000円/坪(共益費込) |
| 預託金 | 6ヶ月 |
| 入居時期 | 即入居 |
| その他費用 | 償却: 1ヶ月 礼金: なし 更新料・再契約料: なし |
| 天井高 | 2,500mm |
| トイレ | 男女共用 |
| 床仕様 | OAフロア |
物件概要
| 所在地 | 東京都港区浜松町2丁目7-13 |
|---|---|
| 交通 |
|
| 規模 | 地上10階建て |
| 竣工 | 2019年1月 |
| 耐震基準 | 新耐震基準 |
| 構造 | 鉄骨(S造) |
| 基準階坪数 | 18.0坪 |
| 基準階天井高 | 2,500mm |
物件詳細・設備
| エレベーター | 1基 |
|---|---|
| 情報通信設備 | 光ファイバー |
| 空調 | 個別空調 |
| セキュリティ | 機械警備 |
VISTA浜松町の空室一覧
↓ 募集区画クリックで詳細情報をご覧いただけます
| 募集区画 | 面積 | 用途 | 賃料+共益費 | 坪単価(共益費込) | 入居時期 | 平面図 | お気に入り |
|---|---|---|---|---|---|---|---|
| 10階 | 17.69坪 | 事務所 | 459,940円 | 26,000円/坪 | 即入居 | ||
| 9階 | 17.69坪 | 事務所 | 442,250円 | 25,000円/坪 | 2026年1月下旬 | ||
| 8階~10階 | 53.07坪 | 事務所 | 1,326,750円 | 25,000円/坪 | 相談 | ||
| 8階 | 17.69坪 | 事務所 | 442,250円 | 25,000円/坪 | 2026年1月下旬 | ||
| 5階 | 17.69坪 | 事務所 | 406,870円 | 23,000円/坪 | 2026年1月下旬 | ||
| 4階~5階 | 35.38坪 | 事務所 | 813,740円 | 23,000円/坪 | 相談 | ||
| 4階 | 17.69坪 | 事務所 | 353,800円 | 20,000円/坪 | 即入居 |
※表⽰⾦額は、敷⾦・保証⾦などの預かり⾦を除き、別途消費税がかかります。 / ※間取図は現況を優先させていただきます。 / ※駐車場は建物設備としての有無のため、有の場合でも賃貸条件としての空きを保証するものではありません。 / ※掲載情報の誤りや変更、未掲載情報の掲載依頼がございましたら、お手数ですが お問い合わせフォームよりご連絡ください。
近隣の条件が近い物件
掲載物件数:2,382件
4,316区画



















建物詳細
VISTA浜松町(港区浜松町2丁目)は、JR山手線 浜松町駅徒歩4分の賃貸オフィスビルです。
ビルの竣工は2019年1月(新耐震基準)、建物規模は地上10階建てです。エレベーターは1基あります。
設備面では、機械警備・個別空調・OAフロア・などが備わっています。
最新の空室状況や賃料・賃貸条件など、お気軽にお問合せ下さい。