NEW

幡ヶ谷プラザビル 6階A

最終情報更新日:2026/04/10
ビルコード: 1311300614
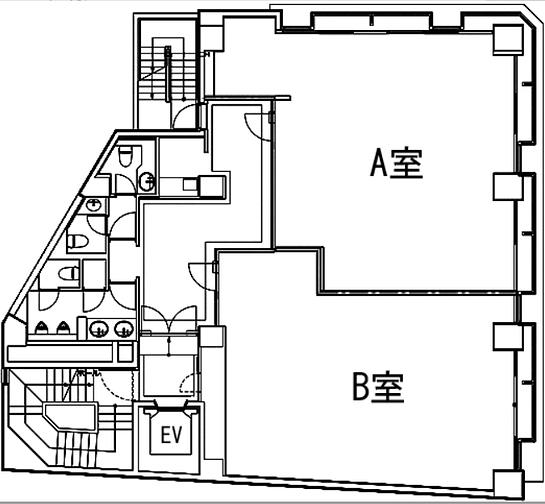
幡ヶ谷プラザビル 6階A 平面図
建物詳細

幡ヶ谷プラザビル(東京都渋谷区幡ヶ谷1丁目1-1)は、最寄り駅「幡ヶ谷」駅から徒歩約1分の立地の地上5階・地下1階建ての賃貸オフィスビルです。ビルの竣工は1979年8月、エレベーターは1基設置されています。

基準階貸室面積は約56.45坪、基準階天井高は2635mm、1フロア1オフィスでセキュリティの確保と独立性の高いオフィス作りが可能。室内内部に柱もなく、エレベーターホールやお手洗いなどは執務室の外に配置されておりレイアウトしやすい空間となっています。設備は機械警備・個別空調・男女別トイレ等の仕様です。

最新の空室状況や賃料・賃貸条件など、お気軽にお問合せ下さい。

賃貸条件

所在階 6階
用途 事務所
面積 26.63坪 / 88.03m²
賃料 相談
共益費 79,890円
坪単価 -
預託金 10ヶ月
入居時期 即入居
その他費用 償却: なし
トイレ 男女別
その他 入居者専用最上階スカイラウンジ、スカイテラス有(予約制、利用料無料)

物件概要

所在地 東京都渋谷区幡ヶ谷1丁目1-1
交通
  • 京王線 幡ヶ谷駅 1分
規模 地上5階 / 地下1階
竣工 1979年8月
構造 鉄筋コンクリート(RC造)
基準階坪数 56.45坪
基準階天井高 2,635mm

物件詳細・設備

エレベーター 1基
駐車場 なし
情報通信設備 光ファイバー
空調 個別空調
セキュリティ 機械警備
建物設備 最上階共用ラウンジ
テラス(予約制、無料)
リニューアル履歴 2015年 リニューアル済
耐震補強工事済

幡ヶ谷プラザビルの空室一覧

↓ 募集区画クリックで詳細情報をご覧いただけます

募集区画 面積 用途 賃料+共益費 坪単価(共益費込) 入居時期 平面図 お気に入り
NEW 6階A 26.63坪 事務所 相談 - 即入居
NEW 6階B 26.63坪 事務所 相談 - 即入居
NEW 4階B 26.63坪 事務所 相談 - 即入居

※表示金額はすべて「税抜き表示」となっています。 / ※間取図は現況を優先させていただきます。 / ※駐車場は建物設備としての有無のため、有の場合でも賃貸条件としての空きを保証するものではありません。 / ※掲載情報の誤りや変更、未掲載情報の掲載依頼がございましたら、お手数ですが お問い合わせフォーム よりご連絡ください。

掲載物件数:2,346件  4,201区画

お気に入りに追加