
賃貸条件
| 所在階 | 9階 |
|---|---|
| 用途 | 事務所 |
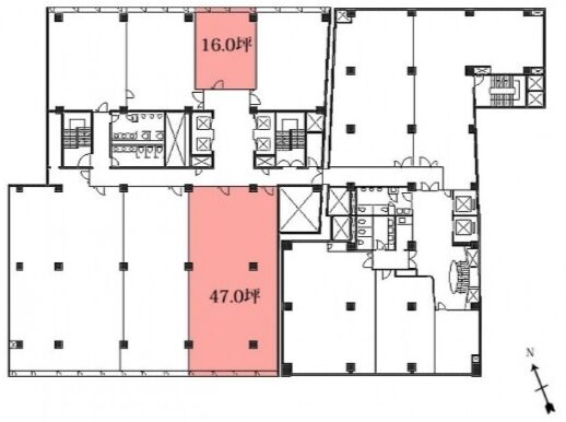
| 面積 | 16.0坪 / 52.89m² |
| 賃料 | 相談 |
| 共益費 | 95,200円 |
| 坪単価 | - |
| 預託金 | 相談 |
| 入居時期 | 即入居 |
| その他費用 | 償却: なし 礼金: なし 更新料・再契約料: なし |
| 天井高 | 2,350mm |
| トイレ | 男女別 |
| 床仕様 | OAフロア |
物件概要
| 所在地 | 東京都港区虎ノ門1丁目1-21 |
|---|---|
| 交通 |
|
| 規模 | 地上9階 / 地下3階 |
| 竣工 | 1965年3月 |
| 構造 | 鉄骨鉄筋コンクリート(SRC造) |
| 基準階坪数 | 244.0坪 |
| 基準階天井高 | 2,400mm |
| 延床面積 | 11,324.0㎡ |
物件詳細・設備
| エレベーター | 4基 |
|---|---|
| 駐車場 | あり 機械式 33台 |
| 情報通信設備 | 光ファイバー |
| 空調 | セントラル空調 |
| セキュリティ | 有人管理 |
| リニューアル履歴 | 耐震補強工事済 |
※表⽰⾦額は、敷⾦・保証⾦などの預かり⾦を除き、別途消費税がかかります。 / ※間取図は現況を優先させていただきます。 / ※駐車場は建物設備としての有無のため、有の場合でも賃貸条件としての空きを保証するものではありません。 / ※掲載情報の誤りや変更、未掲載情報の掲載依頼がございましたら、お手数ですが お問い合わせフォームよりご連絡ください。
近隣の条件が近い物件
掲載物件数:2,406件
4,385区画



















建物詳細
新虎ノ門実業会館(新館)(港区虎ノ門1丁目)は、東京メトロ銀座線 虎ノ門駅直結の賃貸オフィスビルです。
ビルの竣工は1965年3月、建物規模は地上9階・地下3階建てです。エレベーターは4基あります。
基準階貸室面積は244坪、天井高は2400mmです。設備面では、OAフロア・男女別トイレなどの仕様となっております。
最新の空室状況や賃料・賃貸条件など、お気軽にお問合せ下さい。