NEW

昭和ビル(飯田橋) 2階201

最終情報更新日:2026/02/10
ビルコード: 1310100611
昭和ビル(飯田橋)外観① 昭和ビル(飯田橋)外観①
昭和ビル(飯田橋)外観② 昭和ビル(飯田橋)外観②
昭和ビル(飯田橋)外観③ 昭和ビル(飯田橋)外観③
1階店舗部分 1階店舗部分
ビルエントランス① ビルエントランス①
ビルエントランス② ビルエントランス②
エントランスホール① エントランスホール①
エレベーター エレベーター
エントランスホール② エントランスホール②
ビル周辺風景① ビル周辺風景①
昭和ビル(飯田橋)外観①
昭和ビル(飯田橋)外観②
昭和ビル(飯田橋)外観③
1階店舗部分
ビルエントランス①
ビルエントランス②
エントランスホール①
エレベーター
エントランスホール②
ビル周辺風景①
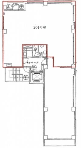
昭和ビル(飯田橋) 2階201 平面図
建物詳細

昭和ビル(千代田区飯田橋1丁目)は、飯田橋駅徒歩3分の賃貸オフィスビルです。

建物の規模は地上6階建て、竣工は1980年12月です。エレベーターは1基あります。

最新の空室状況や賃料・賃貸条件など、お気軽にお問合せ下さい。

賃貸条件

所在階 2階
用途 事務所、店舗
面積 28.0坪 / 92.56m²
賃料 336,000円
共益費 28,000円
坪単価 13,000円/坪 (共益費込)
預託金 5ヶ月
入居時期 2026年4月下旬
その他費用 償却: なし
礼金: 1ヶ月
更新料・再契約料: 1ヶ月
トイレ 男女共用
床仕様 タイルカーペット

物件概要

所在地 東京都千代田区飯田橋1丁目12-6
交通
  • 東京メトロ東西線 飯田橋駅 3分
  • 都営新宿線 九段下駅 5分
  • 東京メトロ半蔵門線 九段下駅 5分
規模 地上6階建て
竣工 1980年12月
構造 鉄筋コンクリート(RC造)

物件詳細・設備

エレベーター 1基
情報通信設備 光ファイバー
空調 個別空調

昭和ビル(飯田橋)の空室一覧

↓ 募集区画クリックで詳細情報をご覧いただけます

募集区画 面積 用途 賃料+共益費 坪単価(共益費込) 入居時期 平面図 お気に入り
NEW 2階201+202 44.0坪 事務所、店舗 572,000円 13,000円/坪 2026年4月下旬
NEW 2階201 28.0坪 事務所、店舗 364,000円 13,000円/坪 2026年4月下旬
NEW 2階202 16.0坪 事務所、店舗 208,000円 13,000円/坪 2026年4月下旬

近隣の条件が近い物件

東京都文京区後楽2丁目3-10

地上10階建て

29.0坪

JR中央・総武線 飯田橋駅 3分

東京都千代田区神田神保町3丁目7

地上9階 / 地下1階

26.73坪

東京メトロ半蔵門線 九段下駅 2分

東京都千代田区飯田橋3丁目4-6

地上9階 / 地下1階

24.35坪

JR中央・総武線 飯田橋駅 4分

東京都千代田区飯田橋3丁目4-4

地上11階建て

24.0坪

東京メトロ東西線 飯田橋駅 1分

東京都千代田区神田三崎町3丁目10-2

地上7階建て

24.69坪

JR中央・総武線 水道橋駅 2分

東京都千代田区神田猿楽町2丁目7-3

地上7階建て

27.0坪

JR中央・総武線 水道橋駅 5分

東京都千代田区九段南3丁目8-11

地上11階 / 地下1階

28.52坪

都営新宿線 市ケ谷駅 5分

東京都千代田区飯田橋3丁目9-8

地上6階建て

23.47坪

JR中央・総武線 飯田橋駅 3分

東京都新宿区新小川町9-20

地上6階建て

28.83坪

JR中央・総武線 飯田橋駅 8分

東京都千代田区神田神保町1丁目12

地上10階 / 地下1階

27.77坪

東京メトロ半蔵門線 神保町駅 1分

東京都千代田区飯田橋4丁目5-16

地上10階建て

22.5坪

東京メトロ東西線 飯田橋駅 3分

東京都千代田区神田三崎町1丁目4-8

地上10階建て

25.11坪

JR中央・総武線 水道橋駅 1分

東京都新宿区市谷田町2丁目38-3

地上8階建て

26.86坪

東京メトロ有楽町線 市ケ谷駅 1分

東京都千代田区九段南3丁目9-14

地上10階建て

24.76坪 〜 25.09坪

JR中央・総武線 市ケ谷駅 4分

東京都千代田区神田神保町3丁目2-9

地上8階 / 地下2階

33.0坪

東京メトロ半蔵門線 神保町駅 3分

東京都千代田区飯田橋4丁目7-11

地上10階 / 地下1階

20.34坪

JR中央・総武線 飯田橋駅 3分

※表示金額はすべて「税抜き表示」となっています。 / ※間取図は現況を優先させていただきます。 / ※駐車場は建物設備としての有無のため、有の場合でも賃貸条件としての空きを保証するものではありません。 / ※掲載情報の誤りや変更、未掲載情報の掲載依頼がございましたら、お手数ですが お問い合わせフォーム よりご連絡ください。

掲載物件数:2,389件  4,356区画

お気に入りに追加