NEW

巴町アネックス 9階

最終情報更新日:2026/04/01
ビルコード: 1310300703
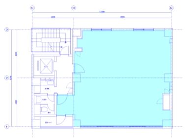
巴町アネックス 9階 平面図

賃貸条件

所在階 9階
用途 事務所
面積 25.5坪 / 84.54m²
賃料 相談
共益費 相談
坪単価 -
預託金 相談
入居時期 2026年10月上旬
天井高 2,400mm
トイレ 男女共用

物件概要

所在地 東京都港区虎ノ門3丁目8-26
交通
  • 東京メトロ日比谷線 神谷町駅 4分
  • 東京メトロ銀座線 虎ノ門駅 5分
規模 地上9階 / 地下1階
竣工 1982年5月
耐震基準 新耐震基準
構造 鉄骨鉄筋コンクリート(SRC造)
基準階坪数 26.3坪
基準階天井高 2,400mm
延床面積 1,106.7㎡

物件詳細・設備

エレベーター 1基
駐車場 なし
情報通信設備 光ファイバー
空調 個別空調

巴町アネックスの空室一覧

↓ 募集区画クリックで詳細情報をご覧いただけます

募集区画 面積 用途 賃料+共益費 坪単価(共益費込) 入居時期 平面図 お気に入り
NEW 9階 25.5坪 事務所 相談 - 2026年10月上旬

近隣の条件が近い物件

東京都港区虎ノ門3丁目6-2

地上9階 / 地下2階

24.09坪

東京メトロ日比谷線 神谷町駅 5分

東京都港区虎ノ門3丁目10-3

地上6階建て

27.5坪

東京メトロ日比谷線 神谷町駅 4分

東京都港区西新橋2丁目39-3

地上8階 / 地下1階

26.55坪

都営三田線 内幸町駅 4分

東京都港区西新橋3丁目19-12

地上6階建て

26.7坪

都営三田線 御成門駅 4分

東京都港区西新橋1丁目17-11

地上9階建て

26.01坪

JR山手線 新橋駅 6分

東京都港区虎ノ門1丁目16-2

地上9階建て

23.0坪

東京メトロ銀座線 虎ノ門駅 2分

東京都港区新橋4丁目30-4

地上8階建て

24.68坪

都営三田線 内幸町駅 5分

東京都港区愛宕2丁目5-1

地上42階 / 地下2階

23.9坪

都営三田線 御成門駅 3分

東京都港区西新橋3丁目24-12

地上5階建て

25.71坪

都営三田線 御成門駅 1分

東京都港区虎ノ門1丁目1-21

地上9階 / 地下3階

27.0坪

東京メトロ銀座線 虎ノ門駅 0分

東京都港区新橋5丁目35-10

地上6階 / 地下2階

23.6坪 〜 24.5坪

都営三田線 御成門駅 3分

東京都港区新橋4丁目7-2

地上8階 / 地下1階

26.0坪

JR山手線 新橋駅 5分

東京都港区虎ノ門5丁目9-1

地上8階 / 地下3階

27.2坪

東京メトロ日比谷線 神谷町駅 2分

東京都港区芝公園3丁目5-8

地上6階 / 地下4階

24.9坪

東京メトロ日比谷線 神谷町駅 8分

東京都港区西新橋1丁目4-14

地上7階 / 地下1階

24.06坪

都営三田線 内幸町駅 1分

東京都千代田区内幸町2丁目2-1

地上11階 / 地下3階

25.37坪

都営三田線 内幸町駅 2分

※表示金額はすべて「税抜き表示」となっています。 / ※間取図は現況を優先させていただきます。 / ※駐車場は建物設備としての有無のため、有の場合でも賃貸条件としての空きを保証するものではありません。 / ※掲載情報の誤りや変更、未掲載情報の掲載依頼がございましたら、お手数ですが お問い合わせフォーム よりご連絡ください。

掲載物件数:2,341件  4,220区画

お気に入りに追加