茅場町2丁目ビル(茅場町二丁目ビル) 8階

最終情報更新日:2026/03/13
ビルコード: 1310200653
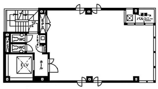
茅場町2丁目ビル(茅場町二丁目ビル) 8階 平面図
建物詳細

茅場町2丁目ビル(中央区日本橋茅場町)は、茅場町駅徒歩1分の賃貸オフィスビルです。

建物は地上9階建て、竣工は2001年1月(新耐震基準)です。エレベーターは1基あります。

基準階貸室面積は26.74坪、基準階天井高は2400mmです。

最新の空室状況や賃料・賃貸条件など、お気軽にお問合せ下さい。

賃貸条件

所在階 8階
用途 事務所
面積 26.74坪 / 88.396m²
賃料 401,100円
共益費 93,590円
坪単価 18,500円/坪 (共益費込)
預託金 12ヶ月
入居時期 2026年5月上旬
その他費用 償却: 2ヶ月
礼金: なし
更新料・再契約料: 新賃料1ヶ月
天井高 2,400mm
トイレ 男女別
床仕様 OAフロア・タイルカーペット

物件概要

所在地 東京都中央区日本橋茅場町2丁目4-5
交通
  • 東京メトロ日比谷線 茅場町駅 1分
  • 東京メトロ日比谷線 八丁堀駅 4分
  • 都営浅草線 日本橋駅 7分
規模 地上9階建て
竣工 2001年1月
耐震基準 新耐震基準
構造 鉄骨(S造)
基準階坪数 26.74坪
基準階天井高 2,400mm

物件詳細・設備

エレベーター 1基
駐車場 なし
情報通信設備 光ファイバー(MDFまで)
空調 個別空調
セキュリティ 機械警備

茅場町2丁目ビル(茅場町二丁目ビル)の空室一覧

↓ 募集区画クリックで詳細情報をご覧いただけます

募集区画 面積 用途 賃料+共益費 坪単価(共益費込) 入居時期 平面図 お気に入り
8階 26.74坪 事務所 494,690円 18,500円/坪 2026年5月上旬
4階 26.74坪 事務所 494,690円 18,500円/坪 2026年7月上旬

近隣の条件が近い物件

東京都中央区日本橋兜町15-12

地上8階建て

25.88坪

東京メトロ日比谷線 茅場町駅 4分

東京都中央区日本橋3丁目14-3

地上13階建て

28.05坪

都営浅草線 日本橋駅 3分

東京都中央区日本橋兜町1-10

地上7階 / 地下1階

26.43坪

東京メトロ日比谷線 茅場町駅 5分

東京都中央区日本橋2丁目16-4

地上9階建て

23.84坪

東京メトロ銀座線 日本橋駅 3分

東京都中央区日本橋茅場町2丁目11-8

地上9階建て

31.12坪

東京メトロ日比谷線 茅場町駅 1分

東京都中央区八丁堀2丁目21-6

地上9階 / 地下1階

30.08坪

東京メトロ日比谷線 八丁堀駅 1分

東京都中央区八丁堀3丁目9-8

地上10階建て

28.94坪

都営浅草線 宝町駅 3分

東京都中央区八重洲1丁目9

地上10階 / 地下2階

25.73坪

JR山手線 東京駅 0分

東京都中央区八丁堀4丁目9-9

地上7階 / 地下1階

24.01坪

東京メトロ日比谷線 八丁堀駅 1分

東京都中央区日本橋茅場町3丁目2-10

地上9階 / 地下3階

31.72坪

東京メトロ日比谷線 茅場町駅 4分

東京都中央区日本橋小舟町11丁目8

地上10階建て

25.98坪

総武線(快速) 新日本橋駅 6分

東京都中央区京橋2丁目6-6

地上8階建て

29.03坪

東京メトロ銀座線 京橋駅 2分

※表示金額はすべて「税抜き表示」となっています。 / ※間取図は現況を優先させていただきます。 / ※駐車場は建物設備としての有無のため、有の場合でも賃貸条件としての空きを保証するものではありません。 / ※掲載情報の誤りや変更、未掲載情報の掲載依頼がございましたら、お手数ですが お問い合わせフォーム よりご連絡ください。

掲載物件数:2,358件  4,255区画

お気に入りに追加