03-6264-1890
受付時間 9:00 - 18:30 定休日 土日祝
受付時間 9:00 - 18:30 定休日 土日祝
茅場町2丁目ビル(茅場町二丁目ビル) 8階
物件情報
| 所在地 | 東京都中央区日本橋茅場町2丁目4-5 |
|---|---|
| 最寄駅 |
東京メトロ日比谷線 茅場町駅 1分 東京メトロ日比谷線 八丁堀駅 4分 都営浅草線 日本橋駅 7分 |
| 竣工 | 2001年1月 |
| 階数 | 地上9階建て |
| エレベーター | 1基 |
賃貸条件
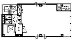
| 募集区画 | 8階 |
|---|---|
| 賃料 (共益費) | 401,100円(93,590円) |
| 敷金 /礼金 | 12ヶ月/なし |
|
保証金
/敷引/償却 |
-/-/2ヶ月 |
| 面積 | 26.74坪 |
| 入居条件 | 2026年5月上旬 |