NEW

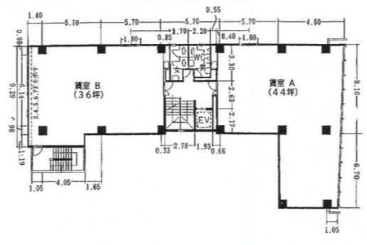
銀座松楠ビル(ぎんざしょうなんビル) 4階A

銀座柳通り沿い、3駅利用可、管理人常駐
最終情報更新日:2026/03/05
ビルコード: 1310200560
銀座松楠ビル(ぎんざしょうなんビル) 4階A 平面図
建物詳細

銀座松楠(しょうなん)ビル(中央区銀座)は、銀座一丁目駅徒歩2分の賃貸オフィスビルです。

建物は地上10階・地下1階建て、竣工は1973年1月です。エレベーターは1基あります。

基準階貸室面積は79坪、基準階天井高は2450mmです。

最新の空室状況や賃料・賃貸条件など、お気軽にお問合せ下さい。

賃貸条件

所在階 4階
用途 事務所
面積 44.0坪 / 145.45m²
賃料 638,000円
共益費 180,400円
坪単価 18,600円/坪 (共益費込)
預託金 12ヶ月
入居時期 即入居
その他費用 償却: なし
礼金: なし
更新料・再契約料: なし
天井高 2,450mm
トイレ 男女別
床仕様 OAフロア・タイルカーペット

物件概要

所在地 東京都中央区銀座1丁目14-10
交通
  • 東京メトロ有楽町線 銀座一丁目駅 2分
  • 東京メトロ銀座線 銀座駅 5分
  • 東京メトロ日比谷線 東銀座駅 3分
規模 地上10階 / 地下1階
竣工 1973年1月
構造 鉄骨鉄筋コンクリート(SRC造)
基準階坪数 79.0坪
基準階天井高 2,450mm
延床面積 2,707.04㎡

物件詳細・設備

エレベーター 1基
駐車場 なし
情報通信設備 光ファイバー(MDFまで)
空調 個別空調
セキュリティ 有人管理

銀座松楠ビル(ぎんざしょうなんビル)の空室一覧

↓ 募集区画クリックで詳細情報をご覧いただけます

募集区画 面積 用途 賃料+共益費 坪単価(共益費込) 入居時期 平面図 お気に入り
NEW 4階A 44.0坪 事務所 818,400円 18,600円/坪 即入居
地下1階B 35.0坪 事務所 633,500円 18,100円/坪 即入居

近隣の条件が近い物件

東京都中央区京橋3丁目9-6

地上9階 / 地下1階

44.3坪 〜 45.9坪

都営浅草線 宝町駅 1分

東京都中央区京橋3丁目9-8

地上10階 / 地下1階

43.6坪

都営浅草線 宝町駅 1分

東京都中央区京橋2丁目12-4

地上10階建て

42.55坪

都営浅草線 宝町駅 1分

東京都中央区新富2丁目8-1

地上8階 / 地下1階

43.4坪

東京メトロ有楽町線 新富町駅 1分

東京都中央区築地2丁目2-8

地上6階 / 地下1階

44.47坪

東京メトロ有楽町線 新富町駅 2分

東京都中央区八重洲2丁目11-3

地上9階建て

46.55坪

東京メトロ有楽町線 銀座一丁目駅 2分

東京都千代田区有楽町1丁目7-1

地上20階 / 地下4階

43.33坪

東京メトロ日比谷線 日比谷駅 1分

東京都中央区八丁堀1丁目108-3、108-4(地番)

地上8階建て

43.46坪

東京メトロ日比谷線 八丁堀駅 5分

東京都中央区京橋2丁目12-12

地上6階建て

40.5坪

都営浅草線 宝町駅 1分

東京都中央区銀座7丁目16-15

地上9階建て

42.58坪

都営大江戸線 築地市場駅 3分

東京都千代田区丸の内3丁目4-1

地上9階 / 地下4階

42.34坪

JR山手線 有楽町駅 2分

東京都中央区銀座2丁目12-3

地上9階 / 地下1階

38.04坪 〜 38.09坪

東京メトロ有楽町線 銀座一丁目駅 2分

東京都中央区京橋1丁目6-13

地上10階 / 地下1階

47.25坪

東京メトロ銀座線 京橋駅 3分

東京都中央区築地2丁目4-2

地上9階建て

47.5坪

東京メトロ有楽町線 新富町駅 1分

東京都中央区銀座7丁目17-2

地上8階 / 地下1階

41.77坪

東京メトロ銀座線 銀座駅 9分

東京都中央区銀座7丁目15-4

地上6階 / 地下1階

41.4坪

東京メトロ日比谷線 東銀座駅 4分

東京都中央区日本橋茅場町2丁目6-8

地上6階 / 地下1階

43.0坪

東京メトロ東西線 茅場町駅 2分

※表示金額はすべて「税抜き表示」となっています。 / ※間取図は現況を優先させていただきます。 / ※駐車場は建物設備としての有無のため、有の場合でも賃貸条件としての空きを保証するものではありません。 / ※掲載情報の誤りや変更、未掲載情報の掲載依頼がございましたら、お手数ですが お問い合わせフォーム よりご連絡ください。

掲載物件数:2,399件  4,320区画

お気に入りに追加