NEW

日証館 2階

1928年9月竣工、東京都選定歴史的建造物のオフィス。
最終情報更新日:2026/02/04
ビルコード: 1310200900
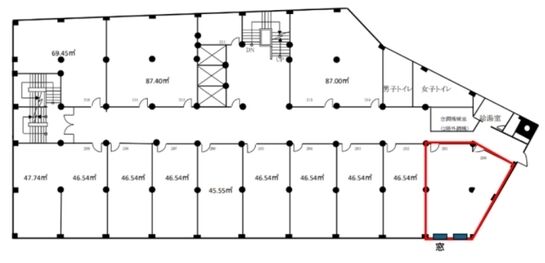
日証館 2階 平面図
建物詳細

日証館(東京都中央区日本橋兜町1-10)は、茅場町駅5分の賃貸オフィスビルです。竣工は1928年9月と大変歴史的価値のある建物です。規模は地上7階・地下1階建て、基準階貸室面積は約230坪です。

1998年に耐震補強工事、2008年にはエントランスと共用部のリニューアルが済んでいます。2024年12月付で「東京都選定歴史的建造物」の認定を受けています。

最新の空室状況・賃貸条件等はお気軽にお問合せ下さい。

賃貸条件

所在階 2階 居抜き
用途 事務所
面積 21.16坪 / 69.95m²
賃料 相談
共益費 賃料に含む
坪単価 -
預託金 12ヶ月
入居時期 相談
天井高 2,700mm
トイレ 男女別
床仕様 OAフロア・タイルカーペット

物件概要

所在地 東京都中央区日本橋兜町1-10
交通
  • 東京メトロ日比谷線 茅場町駅 5分
  • 東京メトロ銀座線 日本橋駅 6分
  • 東京メトロ銀座線 三越前駅 6分
  • 東京メトロ丸ノ内線 大手町駅 10分
規模 地上7階 / 地下1階
竣工 1928年9月
構造 鉄骨鉄筋コンクリート(SRC造)
基準階坪数 230.0坪
基準階天井高 2,700mm
延床面積 7,817.46㎡

物件詳細・設備

エレベーター 3基
駐車場 なし
情報通信設備 光ファイバー
空調 個別空調
セキュリティ 機械警備・有人管理
リニューアル履歴 環境認証:DBJ Green Building 3☆
2008年 エントランス・共用部リニューアル
1998年 耐震補強

日証館の空室一覧

↓ 募集区画クリックで詳細情報をご覧いただけます

募集区画 面積 用途 賃料+共益費 坪単価(共益費込) 入居時期 平面図 お気に入り
3階 26.43坪 事務所 相談 - 相談
3階 25.9坪 事務所 相談 - 2026年4月上旬
NEW 2階 居抜き 21.16坪 事務所 相談 - 相談

近隣の条件が近い物件

東京都中央区日本橋兜町5-1

地上8階 / 地下3階

22.45坪

東京メトロ銀座線 日本橋駅 5分

東京都中央区日本橋小舟町1-12

地上7階建て

22.15坪

東京メトロ日比谷線 人形町駅 5分

東京都中央区日本橋人形町2丁目6-7

地上12階 / 地下1階

22.0坪

東京メトロ日比谷線 人形町駅 1分

東京都中央区日本橋2丁目16-6

地上10階建て

19.91坪

東京メトロ銀座線 日本橋駅 2分

東京都中央区日本橋2丁目9-5

地上10階 / 地下1階

22.63坪

東京メトロ銀座線 日本橋駅 2分

東京都中央区日本橋茅場町2丁目14-1

地上7階建て

22.0坪

東京メトロ東西線 茅場町駅 3分

東京都中央区日本橋茅場町2丁目4-8

地上7階建て

20.9坪

東京メトロ日比谷線 茅場町駅 4分

東京都中央区日本橋3丁目14-1

地上9階 / 地下1階

21.35坪

都営浅草線 日本橋駅 3分

東京都中央区日本橋茅場町2丁目1-11

地上9階建て

22.87坪

東京メトロ日比谷線 茅場町駅 3分

東京都中央区日本橋人形町2丁目21-1

地上7階建て

22.05坪

東京メトロ日比谷線 人形町駅 3分

東京都中央区日本橋蛎殻町2丁目5-3

地上9階 / 地下1階

20.0坪

東京メトロ半蔵門線 水天宮前駅 1分

東京都中央区日本橋大伝馬町1-7

地上9階建て

21.86坪

東京メトロ日比谷線 小伝馬町駅 2分

東京都中央区日本橋人形町2丁目9-5

地上6階建て

22.75坪

東京メトロ日比谷線 人形町駅 2分

東京都中央区日本橋蛎殻町1丁目6-9

地上7階 / 地下1階

18.59坪

東京メトロ半蔵門線 水天宮前駅 3分

東京都中央区日本橋小網町18-11

地上10階建て

25.18坪

東京メトロ日比谷線 人形町駅 4分

東京都中央区日本橋蛎殻町1丁目-10-4

地上5階建て

24.77坪

東京メトロ日比谷線 人形町駅 3分

東京都中央区日本橋本町4丁目9-3

地上14階建て

21.13坪

総武線(快速) 新日本橋駅 2分

※表示金額はすべて「税抜き表示」となっています。 / ※間取図は現況を優先させていただきます。 / ※駐車場は建物設備としての有無のため、有の場合でも賃貸条件としての空きを保証するものではありません。 / ※掲載情報の誤りや変更、未掲載情報の掲載依頼がございましたら、お手数ですが お問い合わせフォーム よりご連絡ください。

掲載物件数:2,425件  4,418区画

お気に入りに追加