03-6264-1890
受付時間 9:00 - 18:30 定休日 土日祝
受付時間 9:00 - 18:30 定休日 土日祝
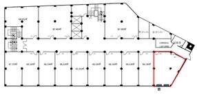
日証館 2階200-201
物件情報
| 所在地 | 東京都中央区日本橋兜町1-10 |
|---|---|
| 最寄駅 |
東京メトロ日比谷線 茅場町駅 5分 東京メトロ銀座線 日本橋駅 6分 東京メトロ銀座線 三越前駅 6分 東京メトロ丸ノ内線 大手町駅 10分 |
| 竣工 | 1928年9月 |
| 階数 | 地上7階 / 地下1階 |
| エレベーター | 3基 |
賃貸条件
| 募集区画 | 2階200-201 |
|---|---|
| 賃料 (共益費) | 相談(賃料に含む) |
| 敷金 /礼金 | 12ヶ月/- |
|
保証金
/敷引/償却 |
なし |
| 面積 | 21.16坪 |
| 入居条件 | 相談 |