NEW

KRKビル 4階

最終情報更新日:2026/03/25
ビルコード: 1310304591
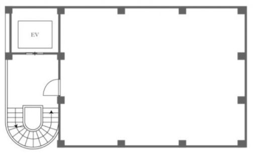
KRKビル 4階 平面図

賃貸条件

所在階 4階
用途 事務所、店舗
面積 17.08坪 / 56.46m²
賃料 597,800円
共益費 賃料に含む
坪単価 35,000円/坪 (共益費込)
預託金 8ヶ月
入居時期 即入居
その他費用 償却: 1ヶ月
礼金: 1ヶ月
更新料・再契約料: なし

物件概要

所在地 東京都港区南青山3丁目24-18
交通
  • 東京メトロ銀座線 表参道駅 4分
規模 地上5階建て
竣工 2025年7月
耐震基準 新耐震基準
構造 鉄骨鉄筋コンクリート(SRC造)

物件詳細・設備

エレベーター 1基
駐車場 なし

KRKビルの空室一覧

↓ 募集区画クリックで詳細情報をご覧いただけます

募集区画 面積 用途 賃料+共益費 坪単価(共益費込) 入居時期 平面図 お気に入り
NEW 4階 17.08坪 事務所、店舗 597,800円 35,000円/坪 即入居
NEW 3階 17.08坪 事務所、店舗 597,800円 35,000円/坪 即入居

近隣の条件が近い物件

東京都港区北青山3丁目5-2

地上10階 / 地下1階

18.1坪

東京メトロ千代田線 表参道駅 5分

東京都港区南青山2丁目27-21

地上9階建て

17.45坪

東京メトロ銀座線 外苑前駅 5分

東京都港区北青山3丁目5-9

地上7階 / 地下1階

15.51坪

東京メトロ銀座線 表参道駅 3分

東京都港区北青山3丁目6-20

地上9階 / 地下1階

18.53坪

東京メトロ千代田線 表参道駅 1分

東京都港区南青山5丁目12-6

地上10階 / 地下1階

15.51坪

東京メトロ銀座線 表参道駅 6分

東京都渋谷区神宮前3丁目22-12

地上5階建て

17.1坪

東京メトロ千代田線 明治神宮前<原宿>駅 6分

東京都渋谷区渋谷1丁目7-2

地上11階建て

15.26坪 〜 17.0坪

東京メトロ半蔵門線 渋谷駅 6分

東京都渋谷区渋谷1丁目20-1

地上6階 / 地下1階

17.12坪

JR山手線 渋谷駅 4分

東京都渋谷区渋谷2丁目14-6

地上8階建て

17.09坪

JR山手線 渋谷駅 7分

東京都港区西麻布2丁目10-7

地上6階建て

20.25坪

東京メトロ千代田線 乃木坂駅 7分

東京都港区南青山1丁目1-1

地上23階 / 地下4階

15.26坪

東京メトロ銀座線 青山一丁目駅 1分

東京都渋谷区千駄ヶ谷3丁目16-1

地上5階 / 地下1階

18.66坪

東京メトロ副都心線 北参道駅 5分

東京都渋谷区渋谷3丁目8-12

地上10階建て

16.86坪

JR山手線 渋谷駅 3分

東京都港区南青山2丁目27-20

地上8階 / 地下1階

24.59坪

東京メトロ銀座線 外苑前駅 3分

東京都港区赤坂7丁目10-9

地上7階建て

17.0坪

東京メトロ千代田線 赤坂駅 4分

※表示金額はすべて「税抜き表示」となっています。 / ※間取図は現況を優先させていただきます。 / ※駐車場は建物設備としての有無のため、有の場合でも賃貸条件としての空きを保証するものではありません。 / ※掲載情報の誤りや変更、未掲載情報の掲載依頼がございましたら、お手数ですが お問い合わせフォーム よりご連絡ください。

掲載物件数:2,354件  4,249区画

お気に入りに追加