NEW

HI池袋ビル 2階

最終情報更新日:2026/03/05
ビルコード: 1311600502
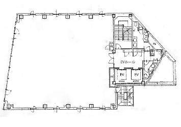
HI池袋ビル 2階 平面図

賃貸条件

所在階 2階
用途 事務所
面積 77.54坪 / 256.33m²
賃料 1,783,420円
共益費 賃料に含む
坪単価 23,000円/坪 (共益費込)
預託金 8ヶ月
入居時期 相談
その他費用 償却: なし
礼金: なし
更新料・再契約料: なし

物件概要

所在地 東京都豊島区南池袋3丁目9-7
交通
  • JR山手線 池袋駅 7分
  • 西武池袋線 池袋駅 5分
  • 東京メトロ丸ノ内線 池袋駅 7分
規模 地上8階 / 地下1階
竣工 1992年8月
耐震基準 新耐震基準
構造 鉄骨(S造)
基準階天井高 2,500mm

物件詳細・設備

エレベーター 2基
空調 セントラル
セキュリティ 機械警備

HI池袋ビルの空室一覧

↓ 募集区画クリックで詳細情報をご覧いただけます

募集区画 面積 用途 賃料+共益費 坪単価(共益費込) 入居時期 平面図 お気に入り
NEW 2階 77.54坪 事務所 1,783,420円 23,000円/坪 相談

近隣の条件が近い物件

東京都豊島区西池袋3丁目28-1

地上8階 / 地下1階

76.42坪

JR山手線 池袋駅 4分

東京都豊島区東池袋3丁目1-1

地上60階 / 地下4階

78.65坪

東京メトロ有楽町線 東池袋駅 3分

東京都豊島区南池袋2丁目17-7

地上13階建て

69.5坪 〜 71.88坪

JR山手線 池袋駅 5分

東京都豊島区東池袋5丁目44-15

地上7階 / 地下1階

76.14坪

JR山手線 大塚駅 5分

東京都豊島区東池袋3丁目4-3

地上14階 / 地下1階

71.82坪

JR山手線 池袋駅 6分

東京都文京区音羽2丁目10-2

地上9階 / 地下1階

80.42坪

東京メトロ有楽町線 護国寺駅 2分

東京都豊島区南池袋2丁目27-8

地上9階 / 地下1階

86.4坪

JR山手線 池袋駅 2分

東京都豊島区南池袋2丁目49-4

地上7階 / 地下1階

86.5坪

JR山手線 池袋駅 8分

東京都豊島区東池袋1丁目25-6

地上12階建て

91.98坪

JR山手線 池袋駅 5分

東京都豊島区南池袋2丁目28-13

地上8階 / 地下2階

94.87坪

JR山手線 池袋駅 5分

東京都新宿区西早稲田2丁目20-15

地上14階 / 地下1階

68.18坪

東京メトロ副都心線 西早稲田駅 1分

東京都新宿区高田馬場4丁目8-7

地上8階 / 地下1階

66.01坪

JR山手線 高田馬場駅 1分

東京都新宿区四谷坂町10-10

地上8階建て

77.44坪

都営新宿線 曙橋駅 5分

東京都文京区小日向4丁目2-6

地上9階 / 地下2階

71.06坪

東京メトロ丸ノ内線 茗荷谷駅 5分

※表示金額はすべて「税抜き表示」となっています。 / ※間取図は現況を優先させていただきます。 / ※駐車場は建物設備としての有無のため、有の場合でも賃貸条件としての空きを保証するものではありません。 / ※掲載情報の誤りや変更、未掲載情報の掲載依頼がございましたら、お手数ですが お問い合わせフォーム よりご連絡ください。

掲載物件数:2,399件  4,320区画

お気に入りに追加