03-6264-1890
受付時間 9:00 - 18:30 定休日 土日祝
受付時間 9:00 - 18:30 定休日 土日祝
HI池袋ビル 2階
物件情報
| 所在地 | 東京都豊島区南池袋3丁目9-7 |
|---|---|
| 最寄駅 |
JR山手線 池袋駅 7分 西武池袋線 池袋駅 5分 東京メトロ丸ノ内線 池袋駅 7分 |
| 竣工 | 1992年8月 |
| 階数 | 地上8階 / 地下1階 |
| エレベーター | 2基 |
賃貸条件
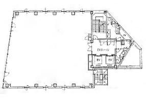
| 募集区画 | 2階 |
|---|---|
| 賃料 (共益費) | 1,783,420円(賃料に含む) |
| 敷金 /礼金 | 8ヶ月/なし |
|
保証金
/敷引/償却 |
-/-/なし |
| 面積 | 77.54坪 |
| 入居条件 | 相談 |