日刊スポーツビル 2階202

最終情報更新日:2026/03/17
ビルコード: 1310204129
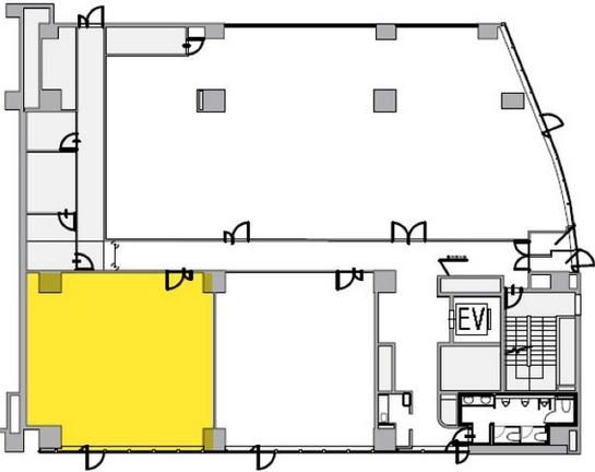
日刊スポーツビル 2階202 平面図

賃貸条件

所在階 2階
用途 事務所
面積 26.92坪 / 88.98m²
賃料 592,240円
共益費 賃料に含む
坪単価 22,000円/坪 (共益費込)
預託金 4ヶ月
入居時期 2026年5月上旬
その他費用 償却: なし
礼金: なし
更新料・再契約料: 1ヶ月
トイレ 男女別

物件概要

所在地 東京都中央区築地3丁目5-10
交通
  • 東京メトロ日比谷線 築地駅 2分
  • 東京メトロ有楽町線 新富町駅 4分
規模 地上7階 / 地下3階
竣工 1986年12月
構造 鉄骨鉄筋コンクリート(SRC造)

物件詳細・設備

エレベーター 3基
空調 個別空調
建物設備 共用部にテレカンブース有

日刊スポーツビルの空室一覧

↓ 募集区画クリックで詳細情報をご覧いただけます

募集区画 面積 用途 賃料+共益費 坪単価(共益費込) 入居時期 平面図 お気に入り
3階 306.72坪 事務所 5,827,680円 19,000円/坪 2026年5月上旬
2階201 76.47坪 事務所 1,682,340円 22,000円/坪 2026年5月上旬
2階202 26.92坪 事務所 592,240円 22,000円/坪 2026年5月上旬
2階203 23.45坪 事務所 515,900円 22,000円/坪 2026年5月上旬

近隣の条件が近い物件

東京都中央区築地7丁目2-1

地上7階建て

25.91坪

東京メトロ日比谷線 築地駅 4分

東京都中央区築地1丁目5-11

地上6階 / 地下1階

27.28坪

東京メトロ有楽町線 新富町駅 4分

東京都中央区新富2丁目15-6

地上9階 / 地下1階

28.05坪

東京メトロ有楽町線 新富町駅 1分

東京都中央区築地2丁目2-8

地上6階 / 地下1階

30.29坪

東京メトロ有楽町線 新富町駅 2分

東京都中央区新富2丁目7-4

地上9階建て

23.91坪

東京メトロ有楽町線 新富町駅 1分

東京都中央区銀座7丁目17-2

地上8階 / 地下1階

26.34坪

東京メトロ銀座線 銀座駅 9分

東京都中央区湊3丁目3-3

地上4階建て

24.16坪

東京メトロ有楽町線 新富町駅 4分

東京都中央区銀座7丁目18-14

地上7階建て

28.54坪

都営大江戸線 築地市場駅 3分

東京都中央区築地4丁目1-1

地上19階 / 地下3階

29.83坪

東京メトロ日比谷線 東銀座駅 2分

東京都中央区銀座1丁目14-5

地上10階 / 地下1階

27.96坪

東京メトロ有楽町線 銀座一丁目駅 2分

東京都中央区銀座3丁目3-14

地上11階 / 地下1階

29.98坪

東京メトロ銀座線 銀座駅 1分

東京都中央区京橋2丁目6-6

地上8階建て

29.03坪

東京メトロ銀座線 京橋駅 2分

東京都中央区京橋1丁目1-10

地上8階 / 地下1階

27.5坪

東京メトロ銀座線 京橋駅 3分

東京都中央区八丁堀2丁目29-4

地上7階建て

29.69坪

東京メトロ日比谷線 八丁堀駅 2分

東京都中央区日本橋3丁目14-3

地上13階建て

28.05坪

都営浅草線 日本橋駅 3分

東京都中央区八丁堀2丁目21-6

地上9階 / 地下1階

30.08坪

東京メトロ日比谷線 八丁堀駅 1分

東京都中央区銀座1丁目5-15

地上9階 / 地下1階

24.01坪

東京メトロ有楽町線 銀座一丁目駅 1分

東京都千代田区丸の内1丁目9-2

地上42階 / 地下4階

25.52坪

JR山手線 東京駅 1分

※表示金額はすべて「税抜き表示」となっています。 / ※間取図は現況を優先させていただきます。 / ※駐車場は建物設備としての有無のため、有の場合でも賃貸条件としての空きを保証するものではありません。 / ※掲載情報の誤りや変更、未掲載情報の掲載依頼がございましたら、お手数ですが お問い合わせフォーム よりご連絡ください。

掲載物件数:2,342件  4,209区画

お気に入りに追加