日刊スポーツビル 2階201

最終情報更新日:2026/03/17
ビルコード: 1310204129
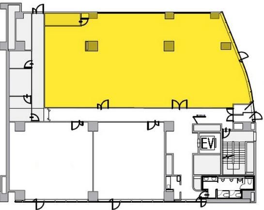
日刊スポーツビル 2階201 平面図

賃貸条件

所在階 2階
用途 事務所
面積 76.47坪 / 252.79m²
賃料 1,682,340円
共益費 賃料に含む
坪単価 22,000円/坪 (共益費込)
預託金 6ヶ月
入居時期 2026年5月上旬
その他費用 償却: なし
礼金: なし
更新料・再契約料: 1ヶ月
トイレ 男女別

物件概要

所在地 東京都中央区築地3丁目5-10
交通
  • 東京メトロ日比谷線 築地駅 2分
  • 東京メトロ有楽町線 新富町駅 4分
規模 地上7階 / 地下3階
竣工 1986年12月
構造 鉄骨鉄筋コンクリート(SRC造)

物件詳細・設備

エレベーター 3基
空調 個別空調
建物設備 共用部にテレカンブース有

日刊スポーツビルの空室一覧

↓ 募集区画クリックで詳細情報をご覧いただけます

募集区画 面積 用途 賃料+共益費 坪単価(共益費込) 入居時期 平面図 お気に入り
3階 306.72坪 事務所 5,827,680円 19,000円/坪 2026年5月上旬
2階201 76.47坪 事務所 1,682,340円 22,000円/坪 2026年5月上旬
2階202 26.92坪 事務所 592,240円 22,000円/坪 2026年5月上旬
2階203 23.45坪 事務所 515,900円 22,000円/坪 2026年5月上旬

近隣の条件が近い物件

東京都中央区築地1丁目10以下未定

地上10階建て

74.98坪

東京メトロ日比谷線 築地駅 2分

東京都中央区銀座4丁目10-3

地上10階 / 地下1階

75.81坪

都営浅草線 東銀座駅 1分

東京都中央区新富2丁目8-1

地上8階 / 地下1階

80.38坪

東京メトロ有楽町線 新富町駅 1分

東京都中央区銀座8丁目17-1

地上9階建て

75.7坪

都営大江戸線 築地市場駅 4分

東京都中央区銀座5丁目15-8

地上14階 / 地下2階

74.41坪 〜 78.42坪

東京メトロ日比谷線 東銀座駅 2分

東京都中央区八丁堀3丁目22-13

地上9階 / 地下1階

78.47坪

JR京葉線 八丁堀駅 1分

東京都中央区八丁堀2丁目6-1

地上9階 / 地下5階

74.99坪

東京メトロ日比谷線 八丁堀駅 3分

東京都中央区銀座2丁目2-2

地上12階 / 地下1階

77.83坪

東京メトロ有楽町線 銀座一丁目駅 1分

東京都中央区新川1丁目11-11

地上6階 / 地下1階

76.02坪

東京メトロ日比谷線 茅場町駅 4分

東京都中央区明石町3-3

地上7階 / 地下1階

71.37坪

東京メトロ日比谷線 八丁堀駅 8分

東京都中央区日本橋3-6

地上10階建て

75.63坪

東京メトロ東西線 日本橋駅 4分

東京都中央区銀座8丁目1番9、28(地番) 銀座天國ビル

地上13階 / 地下1階

74.34坪

東京メトロ銀座線 銀座駅 6分

東京都中央区日本橋茅場町1丁目8-3

地上8階 / 地下1階

77.06坪

東京メトロ日比谷線 茅場町駅 1分

東京都中央区八丁堀3丁目20-4

地上12階建て

80.3坪

JR京葉線 八丁堀駅 1分

東京都中央区築地2丁目4-2

地上9階建て

68.1坪

東京メトロ有楽町線 新富町駅 1分

※表示金額はすべて「税抜き表示」となっています。 / ※間取図は現況を優先させていただきます。 / ※駐車場は建物設備としての有無のため、有の場合でも賃貸条件としての空きを保証するものではありません。 / ※掲載情報の誤りや変更、未掲載情報の掲載依頼がございましたら、お手数ですが お問い合わせフォーム よりご連絡ください。

掲載物件数:2,337件  4,204区画

お気に入りに追加