オキノビル 2階

最終情報更新日:2026/03/06
ビルコード: 1310304540
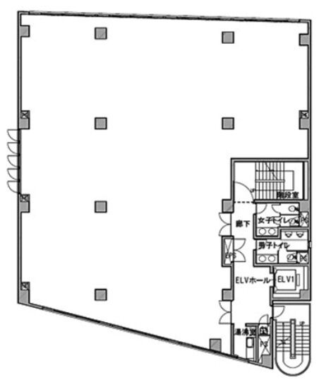
オキノビル 2階 平面図

賃貸条件

所在階 2階
用途 事務所
面積 123.46坪 / 408.13m²
賃料 相談
共益費 賃料に含む
坪単価 -
預託金 12ヶ月
入居時期 2026年4月上旬
その他費用 償却: なし
更新料・再契約料: なし
トイレ 男女別

物件概要

所在地 東京都港区南麻布2丁目14-19
交通
  • 東京メトロ南北線 白金高輪駅 7分
  • 都営大江戸線 麻布十番駅 12分
規模 地上5階 / 地下1階
竣工 1988年10月
耐震基準 新耐震基準
構造 鉄骨鉄筋コンクリート(SRC造)

物件詳細・設備

エレベーター 1基
駐車場 なし
情報通信設備 光ファイバー
空調 個別空調
セキュリティ 機械警備

オキノビルの空室一覧

↓ 募集区画クリックで詳細情報をご覧いただけます

募集区画 面積 用途 賃料+共益費 坪単価(共益費込) 入居時期 平面図 お気に入り
2階 123.46坪 事務所 相談 - 2026年4月上旬

近隣の条件が近い物件

東京都港区芝3丁目2-18

地上12階 / 地下2階

123.41坪

都営大江戸線 赤羽橋駅 4分

東京都港区南麻布1丁目5-10

地上4階建て

117.15坪

東京メトロ南北線 麻布十番駅 5分

東京都港区六本木6丁目7-6

地上7階 / 地下1階

123.7坪

東京メトロ日比谷線 六本木駅 2分

東京都渋谷区広尾1丁目13-1

地上8階 / 地下1階

120.09坪

JR山手線 恵比寿駅 5分

東京都港区虎ノ門4丁目3-20

地上20階 / 地下4階

120.8坪

東京メトロ日比谷線 神谷町駅 1分

東京都港区西新橋2丁目12-1~7、9~16(地番)

地上14階 / 地下1階

124.18坪

都営三田線 内幸町駅 4分

東京都港区虎ノ門2丁目4-1

地上10階建て

125.0坪

東京メトロ銀座線 虎ノ門駅 3分

東京都品川区西五反田3丁目6-32

地上4階 / 地下1階

121.27坪

JR山手線 五反田駅 7分

東京都港区虎ノ門1丁目1-3

地上9階 / 地下2階

124.02坪

東京メトロ銀座線 虎ノ門駅 1分

東京都港区新橋1丁目18-16

地上9階 / 地下3階

122.69坪

都営三田線 内幸町駅 1分

東京都品川区東五反田1丁目13-12

地上11階建て

120.12坪

JR山手線 五反田駅 1分

東京都港区海岸3丁目2-8

地上7階 / 地下1階

117.68坪

ゆりかもめ 芝浦ふ頭駅 4分

東京都渋谷区神南1丁目17-11

地上6階 / 地下1階

122.48坪

JR山手線 渋谷駅 5分

東京都港区芝1丁目12-7

地上8階 / 地下1階

130.02坪

都営大江戸線 大門駅 8分

東京都港区三田1丁目4-28

地上26階 / 地下3階

134.72坪

都営大江戸線 赤羽橋駅 3分

東京都品川区東品川2丁目2-20

地上25階 / 地下2階

125.37坪

東京モノレール 天王洲アイル駅 1分

東京都品川区西五反田7丁目22-17

地上13階 / 地下3階

120.86坪

東急池上線 大崎広小路駅 5分

東京都目黒区目黒2丁目10-11

地上10階 / 地下1階

119.03坪

JR山手線 目黒駅 8分

東京都港区芝公園2丁目4-1

地上14階 / 地下1階

131.52坪

都営浅草線 大門駅 2分

東京都中央区銀座6丁目8-7

地上10階 / 地下2階

121.9坪

東京メトロ銀座線 銀座駅 4分

※表示金額はすべて「税抜き表示」となっています。 / ※間取図は現況を優先させていただきます。 / ※駐車場は建物設備としての有無のため、有の場合でも賃貸条件としての空きを保証するものではありません。 / ※掲載情報の誤りや変更、未掲載情報の掲載依頼がございましたら、お手数ですが お問い合わせフォーム よりご連絡ください。

掲載物件数:2,393件  4,305区画

お気に入りに追加