MUTOH浜町ビル 8階

最終情報更新日:2026/01/30
ビルコード: 1310204057
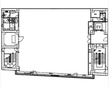
MUTOH浜町ビル 8階 平面図

賃貸条件

所在階 8階
用途 事務所
面積 99.85坪 / 330.08m²
賃料 相談
共益費 相談
坪単価 -
預託金 12ヶ月
入居時期 2026年3月上旬
床仕様 OAフロア

物件概要

所在地 東京都中央区日本橋浜町2丁目13-6
交通
  • 都営新宿線 浜町駅 3分
  • 東京メトロ日比谷線 人形町駅 6分
  • 都営浅草線 東日本橋駅 7分
規模 地上8階建て
竣工 1988年7月
耐震基準 新耐震基準
構造 鉄骨鉄筋コンクリート(SRC造)
基準階坪数 106.0坪

物件詳細・設備

エレベーター 1基
駐車場 あり
情報通信設備 光ファイバー
空調 個別空調
セキュリティ 機械警備

MUTOH浜町ビルの空室一覧

↓ 募集区画クリックで詳細情報をご覧いただけます

募集区画 面積 用途 賃料+共益費 坪単価(共益費込) 入居時期 平面図 お気に入り
8階 99.85坪 事務所 相談 - 2026年3月上旬

近隣の条件が近い物件

東京都中央区日本橋箱崎町17-1

地上9階建て

96.58坪

東京メトロ半蔵門線 水天宮前駅 4分

東京都中央区日本橋浜町2丁目1-1

地上9階 / 地下1階

92.58坪

東京メトロ半蔵門線 水天宮前駅 4分

東京都中央区東日本橋1丁目5-6

地上8階 / 地下2階

106.87坪

都営浅草線 東日本橋駅 2分

東京都中央区日本橋茅場町1丁目12-2

地上9階 / 地下1階

103.21坪

東京メトロ東西線 茅場町駅 1分

東京都中央区八丁堀2丁目6-1

地上9階 / 地下5階

101.51坪

東京メトロ日比谷線 八丁堀駅 3分

東京都中央区八丁堀3丁目20-4

地上12階建て

101.11坪

JR京葉線 八丁堀駅 1分

東京都中央区東日本橋2丁目15-5

地上8階建て

93.13坪

総武線(快速) 馬喰町駅 2分

東京都中央区日本橋馬喰町2丁目3-2

地上10階 / 地下1階

94.34坪 〜 94.48坪

総武線(快速) 馬喰町駅 2分

東京都中央区八重洲1丁目9

地上10階 / 地下2階

98.21坪

JR山手線 東京駅 0分

東京都千代田区内神田3丁目11-7

地上11階 / 地下1階

102.66坪

JR山手線 神田駅 2分

東京都江東区佐賀1丁目4-9

地上9階 / 地下1階

96.16坪

東京メトロ東西線 門前仲町駅 7分

※表示金額はすべて「税抜き表示」となっています。 / ※間取図は現況を優先させていただきます。 / ※駐車場は建物設備としての有無のため、有の場合でも賃貸条件としての空きを保証するものではありません。 / ※掲載情報の誤りや変更、未掲載情報の掲載依頼がございましたら、お手数ですが お問い合わせフォーム よりご連絡ください。

掲載物件数:2,413件  4,390区画

お気に入りに追加