03-6264-1890
受付時間 9:00 - 18:30 定休日 土日祝
受付時間 9:00 - 18:30 定休日 土日祝
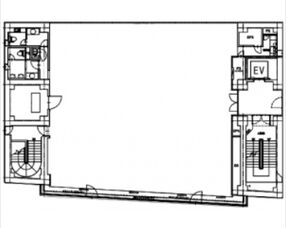
MUTOH浜町ビル 8階
物件情報
| 所在地 | 東京都中央区日本橋浜町2丁目13-6 |
|---|---|
| 最寄駅 |
都営新宿線 浜町駅 3分 東京メトロ日比谷線 人形町駅 6分 都営浅草線 東日本橋駅 7分 |
| 竣工 | 1988年7月 |
| 階数 | 地上8階建て |
| エレベーター | 1基 |
賃貸条件
| 募集区画 | 8階 |
|---|---|
| 賃料 (共益費) | 相談(相談) |
| 敷金 /礼金 | 12ヶ月/- |
|
保証金
/敷引/償却 |
なし |
| 面積 | 99.85坪 |
| 入居条件 | 2026年3月上旬 |