NEW

朝日生命杉並ビル 3階

最終情報更新日:2026/02/02
ビルコード:1311500031
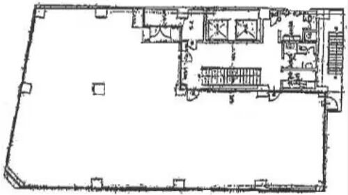
朝日生命杉並ビル 3階 平面図

賃貸条件

所在階3階
用途事務所
面積57.6坪 / 190.41m²
賃料相談
共益費相談
坪単価-
預託金相談
入居時期2026年4月上旬
トイレ男女別

物件概要

所在地東京都杉並区天沼2丁目3-9
交通
  • JR中央・総武線 荻窪駅 4分
  • JR中央線(快速) 阿佐ケ谷駅 15分
規模地上9階建て
竣工1977年2月
構造鉄骨鉄筋コンクリート(SRC造)
基準階坪数78.77坪
基準階天井高2,600mm

物件詳細・設備

エレベーター2基
情報通信設備光ファイバー
空調個別空調
セキュリティ機械警備・有人管理

朝日生命杉並ビルの空室一覧

↓ 募集区画クリックで詳細情報をご覧いただけます

募集区画面積用途賃料+共益費坪単価(共益費込)入居時期平面図お気に入り
NEW4階78.77坪事務所相談-2026年4月上旬
NEW3階57.6坪事務所相談-2026年4月上旬

※表⽰⾦額は、敷⾦・保証⾦などの預かり⾦を除き、別途消費税がかかります。 / ※間取図は現況を優先させていただきます。 / ※駐車場は建物設備としての有無のため、有の場合でも賃貸条件としての空きを保証するものではありません。 / ※掲載情報の誤りや変更、未掲載情報の掲載依頼がございましたら、お手数ですが お問い合わせフォームよりご連絡ください。

近隣の条件が近い物件

東京都杉並区荻窪4丁目32-2

地上9階建て

58.29坪

JR中央線(快速) 荻窪駅 6分

東京都杉並区上荻1丁目8-8

地上9階 / 地下2階

70.0坪

JR中央・総武線 荻窪駅 1分

東京都杉並区松庵3丁目1-1

地上7階 / 地下1階

57.0坪

JR中央線(快速) 西荻窪駅 8分

東京都中野区丸山1丁目12-8

地上8階 / 地下1階

54.31坪

西武新宿線 野方駅 8分

東京都杉並区阿佐谷南1丁目8-5

地上5階 / 地下1階

73.84坪

東京メトロ丸ノ内線 南阿佐ケ谷駅 5分

東京都杉並区和泉4丁目47-22

地上7階建て

51.1坪

東京メトロ丸ノ内線 方南町駅 4分

東京都新宿区西新宿4丁目3-12

地上9階建て

57.66坪

都営大江戸線 西新宿五丁目駅 2分

東京都武蔵野市吉祥寺本町1丁目15-9

地上8階 / 地下2階

64.61坪

京王井の頭線 吉祥寺駅 1分

東京都新宿区西新宿1丁目26-2

地上50階 / 地下5階

57.54坪 〜 58.32坪

JR山手線 新宿駅 7分

東京都新宿区西新宿7丁目22-33

地上5階 / 地下1階

57.56坪

東京メトロ丸ノ内線 西新宿駅 6分

東京都杉並区西荻北5丁目25-13

地上6階 / 地下1階

40.2坪

JR中央線(快速) 西荻窪駅 12分

東京都渋谷区代々木3丁目28-6

地上8階建て

55.77坪

京王線 初台駅 8分

東京都渋谷区代々木1丁目57-4

地上10階建て

56.4坪

都営大江戸線 代々木駅 2分

東京都新宿区西新宿6丁目24-1

地上27階 / 地下2階

53.86坪

東京メトロ丸ノ内線 西新宿駅 4分

東京都新宿区新宿2丁目12-8

地上9階 / 地下1階

56.51坪 〜 56.51坪

東京メトロ副都心線 新宿三丁目駅 1分

東京都渋谷区松濤2丁目15-13

地上6階 / 地下1階

58.16坪

京王井の頭線 神泉駅 4分

東京都渋谷区代々木1丁目30-7

地上9階 / 地下1階

55.58坪

JR山手線 代々木駅 2分

掲載物件数:2,391件  4,334区画

お気に入りに追加