朝日生命杉並ビル 4階

最終情報更新日:2026/03/02
ビルコード: 1311500031
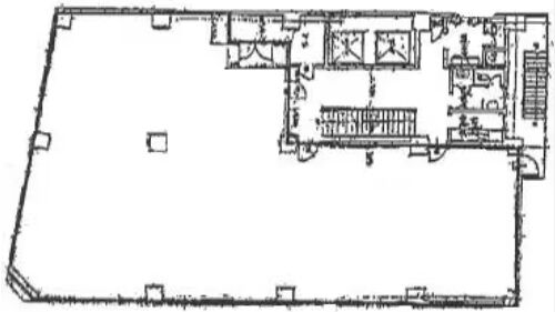
朝日生命杉並ビル 4階 平面図

賃貸条件

所在階 4階
用途 事務所
面積 80.64坪 / 266.57m²
賃料 相談
共益費 相談
坪単価 -
預託金 相談
入居時期 2026年4月上旬
トイレ 男女別

物件概要

所在地 東京都杉並区天沼2丁目3-9
交通
  • JR中央・総武線 荻窪駅 4分
  • JR中央線(快速) 阿佐ケ谷駅 15分
規模 地上9階建て
竣工 1977年2月
構造 鉄骨鉄筋コンクリート(SRC造)
基準階坪数 78.77坪
基準階天井高 2,600mm

物件詳細・設備

エレベーター 2基
情報通信設備 光ファイバー
空調 個別空調
セキュリティ 機械警備・有人管理

朝日生命杉並ビルの空室一覧

↓ 募集区画クリックで詳細情報をご覧いただけます

募集区画 面積 用途 賃料+共益費 坪単価(共益費込) 入居時期 平面図 お気に入り
4階 80.64坪 事務所 相談 - 2026年4月上旬
3階 59.15坪 事務所 相談 - 2026年4月上旬

近隣の条件が近い物件

東京都杉並区上荻1丁目8-8

地上9階 / 地下2階

70.0坪

JR中央・総武線 荻窪駅 1分

東京都杉並区阿佐谷南1丁目8-5

地上5階 / 地下1階

73.84坪

東京メトロ丸ノ内線 南阿佐ケ谷駅 5分

東京都武蔵野市吉祥寺本町1丁目10-31

地上12階 / 地下2階

81.48坪

JR中央本線 吉祥寺駅 5分

東京都中野区弥生町2丁目4-9

地上7階 / 地下1階

81.16坪

東京メトロ丸ノ内線 中野新橋駅 4分

東京都中野区東中野3丁目9-20

地上7階 / 地下1階

81.7坪

都営大江戸線 東中野駅 2分

東京都中野区本町1丁目32-2

地上29階 / 地下2階

85.26坪

東京メトロ丸ノ内線 中野坂上駅 1分

東京都新宿区歌舞伎町2丁目46-3

地上8階建て

82.56坪

西武新宿線 西武新宿駅 1分

東京都杉並区和泉2丁目7-1

地上6階 / 地下1階

70.79坪 〜 88.11坪

京王線 明大前駅 6分

東京都新宿区新宿3丁目37-11

地上9階 / 地下2階

78.62坪

JR山手線 新宿駅 1分

東京都新宿区西新宿3丁目2-26

地上9階建て

77.17坪

都営大江戸線 都庁前駅 5分

東京都新宿区西新宿7丁目5-25

地上16階 / 地下2階

84.18坪

西武新宿線 西武新宿駅 3分

東京都渋谷区千駄ヶ谷4丁目30-3

地上7階 / 地下1階

78.1坪

JR山手線 代々木駅 3分

東京都渋谷区富ヶ谷1丁目16-4

地上4階建て

83.5坪

東京メトロ千代田線 代々木公園駅 6分

東京都渋谷区神宮前3丁目1-25

地上6階 / 地下1階

80.87坪

東京メトロ銀座線 外苑前駅 5分

東京都渋谷区代々木1丁目57-1

地上8階建て

83.92坪

JR山手線 代々木駅 1分

東京都文京区音羽2丁目10-2

地上9階 / 地下1階

80.42坪

東京メトロ有楽町線 護国寺駅 2分

※表示金額はすべて「税抜き表示」となっています。 / ※間取図は現況を優先させていただきます。 / ※駐車場は建物設備としての有無のため、有の場合でも賃貸条件としての空きを保証するものではありません。 / ※掲載情報の誤りや変更、未掲載情報の掲載依頼がございましたら、お手数ですが お問い合わせフォーム よりご連絡ください。

掲載物件数:2,349件  4,246区画

お気に入りに追加