ライオンズ三田 2階201

最終情報更新日:2026/03/11
ビルコード: 1310304475
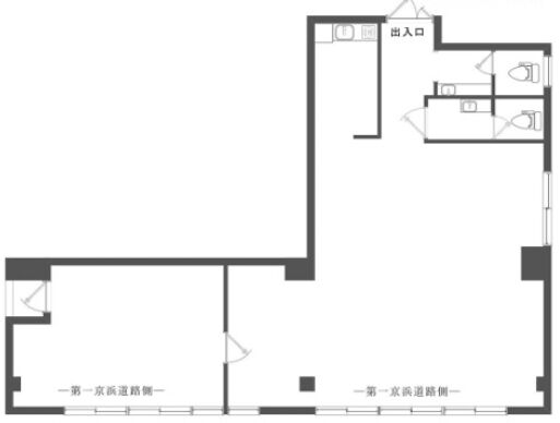
ライオンズ三田 2階201 平面図

賃貸条件

所在階 2階
用途 事務所
面積 28.75坪 / 95.04m²
賃料 360,000円
共益費 45,000円
坪単価 14,086円/坪 (共益費込)
預託金 3ヶ月
入居時期 即入居
その他費用 償却: 1ヶ月
礼金: 1ヶ月
更新料・再契約料: なし
トイレ 男女別
床仕様 タイルカーペット

物件概要

所在地 東京都港区芝4丁目6-16
交通
  • 都営三田線 三田駅 4分
  • JR山手線 田町駅 7分
規模 地上11階 / 地下1階
竣工 1979年4月
構造 鉄骨鉄筋コンクリート(SRC造)

物件詳細・設備

エレベーター 調査中
駐車場 あり
リニューアル履歴 2025年1月 内装リフォーム済

ライオンズ三田の空室一覧

↓ 募集区画クリックで詳細情報をご覧いただけます

募集区画 面積 用途 賃料+共益費 坪単価(共益費込) 入居時期 平面図 お気に入り
2階202 36.91坪 事務所 438,000円 11,866円/坪 即入居
2階201 28.75坪 事務所 405,000円 14,086円/坪 即入居

近隣の条件が近い物件

東京都港区芝2丁目27-8

地上10階 / 地下1階

29.21坪

JR山手線 浜松町駅 7分

東京都港区芝2丁目10-1

地上5階建て

28.8坪

JR山手線 浜松町駅 7分

東京都港区芝5丁目31-7

地上12階 / 地下2階

25.17坪 〜 30.62坪

都営浅草線 三田駅 1分

東京都港区芝2丁目5-10

地上11階 / 地下2階

26.41坪

都営三田線 芝公園駅 3分

東京都港区三田3丁目1-10

地上8階 / 地下1階

27.45坪

JR山手線 田町駅 7分

東京都港区芝浦2丁目3-37

地上7階建て

31.58坪

都営三田線 三田駅 9分

東京都港区芝2丁目28-11

地上11階建て

23.4坪

都営三田線 三田駅 6分

東京都港区芝大門1丁目6-1

地上5階 / 地下1階

28.58坪

都営大江戸線 大門駅 3分

東京都港区芝公園3丁目4-30

地上10階 / 地下4階

28.95坪

都営三田線 御成門駅 6分

東京都港区芝2丁目30-13

地上7階建て

21.62坪

都営三田線 芝公園駅 5分

東京都港区芝大門1丁目4-9

地上9階建て

26.73坪

都営浅草線 大門駅 1分

東京都港区芝3丁目6-10

地上7階建て

23.21坪

都営三田線 芝公園駅 2分

東京都港区芝4丁目1-23

地上24階 / 地下1階

21.6坪

都営三田線 三田駅 1分

東京都港区芝公園3丁目5-8

地上6階 / 地下4階

28.88坪

東京メトロ日比谷線 神谷町駅 8分

東京都港区芝3丁目16-12

地上10階 / 地下1階

33.4坪

都営三田線 芝公園駅 6分

東京都港区西新橋3丁目24-1

地上5階建て

28.49坪

都営三田線 御成門駅 1分

※表示金額はすべて「税抜き表示」となっています。 / ※間取図は現況を優先させていただきます。 / ※駐車場は建物設備としての有無のため、有の場合でも賃貸条件としての空きを保証するものではありません。 / ※掲載情報の誤りや変更、未掲載情報の掲載依頼がございましたら、お手数ですが お問い合わせフォーム よりご連絡ください。

掲載物件数:2,343件  4,235区画

お気に入りに追加