北青山プラザビル 4階

最終情報更新日:2025/12/03
ビルコード:1310304467
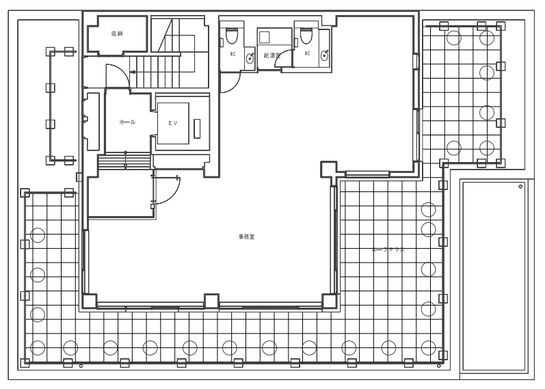
北青山プラザビル 4階 平面図

賃貸条件

所在階4階
用途事務所
面積27.49坪 / 90.87m²
賃料相談
共益費82,470円
坪単価-
預託金12ヶ月
入居時期即入居
その他費用償却: なし
トイレ男女別

物件概要

所在地東京都港区北青山2丁目11-9
交通
  • 東京メトロ銀座線 外苑前駅 4分
規模地上4階建て
竣工1989年7月
耐震基準新耐震基準
構造鉄筋コンクリート(RC造)
延床面積783.88㎡

物件詳細・設備

エレベーター1基
駐車場なし
空調個別空調
リニューアル履歴2014年11月 大規模改修

北青山プラザビルの空室一覧

↓ 募集区画クリックで詳細情報をご覧いただけます

募集区画面積用途賃料+共益費坪単価(共益費込)入居時期平面図お気に入り
4階27.49坪事務所相談-即入居

※表⽰⾦額は、敷⾦・保証⾦などの預かり⾦を除き、別途消費税がかかります。 / ※間取図は現況を優先させていただきます。 / ※駐車場は建物設備としての有無のため、有の場合でも賃貸条件としての空きを保証するものではありません。 / ※掲載情報の誤りや変更、未掲載情報の掲載依頼がございましたら、お手数ですが お問い合わせフォームよりご連絡ください。

近隣の条件が近い物件

東京都港区南青山3丁目7-1

地上5階建て

26.31坪

東京メトロ銀座線 表参道駅 7分

東京都港区南青山3丁目5-2

地上3階建て

24.65坪 〜 28.74坪

東京メトロ銀座線 外苑前駅 7分

東京都渋谷区神宮前2丁目6-14

地上7階建て

25.13坪

東京メトロ銀座線 外苑前駅 8分

東京都港区北青山3丁目5-15

地上10階 / 地下1階

25.97坪

東京メトロ千代田線 表参道駅 3分

東京都渋谷区神宮前3丁目22-12

地上5階建て

25.4坪 〜 28.76坪

東京メトロ千代田線 明治神宮前<原宿>駅 6分

東京都渋谷区神宮前3丁目14-17

地上2階 / 地下1階

25.25坪

東京メトロ副都心線 明治神宮前<原宿>駅 6分

東京都港区北青山3丁目6-19

地上10階 / 地下1階

26.82坪

東京メトロ千代田線 表参道駅 2分

東京都港区南青山2丁目14-20

地上3階 / 地下1階

25.0坪

東京メトロ銀座線 外苑前駅 3分

東京都港区南青山2丁目22-19

地上10階 / 地下1階

30.55坪

東京メトロ銀座線 外苑前駅 1分

東京都港区北青山3丁目5-9

地上7階 / 地下1階

24.43坪

東京メトロ銀座線 表参道駅 3分

東京都港区南青山1丁目4-2

地上8階建て

28.53坪

東京メトロ銀座線 青山一丁目駅 2分

東京都港区北青山3丁目6-20

地上9階 / 地下1階

25.85坪

東京メトロ千代田線 表参道駅 1分

東京都渋谷区神宮前1丁目14-4

地上4階 / 地下1階

27.69坪

JR山手線 原宿駅 2分

掲載物件数:2,424件  4,417区画

お気に入りに追加