
賃貸条件
| 所在階 | 3階内装付 |
|---|---|
| 用途 | 事務所 |
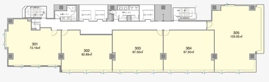
| 面積 | 19.04坪 / 62.94m² |
| 賃料 | 相談 |
| 共益費 | 賃料に含む |
| 坪単価 | - |
| 預託金 | 相談 |
| 入居時期 | 即入居 |
| トイレ | 男女別 |
| 床仕様 | OAフロア |
| その他 | フルセットアップ |
物件概要
| 所在地 | 東京都港区赤坂3丁目17-3 |
|---|---|
| 交通 |
|
| 規模 | 地上13階建て |
| 竣工 | 2025年6月 |
| 耐震基準 | 新耐震基準 |
| 構造 | 鉄骨(S造) |
| 延床面積 | 5,238.36㎡ |
物件詳細・設備
| エレベーター | 3基 |
|---|---|
| 駐車場 | あり |
| 情報通信設備 | 光ファイバー |
| 空調 | 個別空調 |
| セキュリティ | 機械警備・有人管理 |
| 建物設備 | 1・2階フードホール、屋上ルーフトップバー、5階にテナント共用ラウンジ有 |
※表⽰⾦額は、敷⾦・保証⾦などの預かり⾦を除き、別途消費税がかかります。 / ※間取図は現況を優先させていただきます。 / ※駐車場は建物設備としての有無のため、有の場合でも賃貸条件としての空きを保証するものではありません。 / ※掲載情報の誤りや変更、未掲載情報の掲載依頼がございましたら、お手数ですが お問い合わせフォームよりご連絡ください。
近隣の条件が近い物件
掲載物件数:2,421件
4,390区画






























