ラグーン池袋ビル 8階

最終情報更新日:2026/03/18
ビルコード: 1311600469
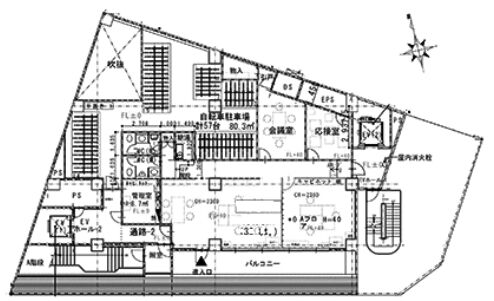
ラグーン池袋ビル 8階 平面図

賃貸条件

所在階 8階 居抜き
用途 事務所
面積 39.89坪 / 131.86m²
賃料 相談
共益費 相談
坪単価 -
預託金 12ヶ月
入居時期 即入居
その他費用 償却: なし
更新料・再契約料: なし
トイレ 男女別
床仕様 OAフロア

物件概要

所在地 東京都豊島区東池袋1丁目21-1
交通
  • JR山手線 池袋駅 4分
規模 地上8階 / 地下2階
竣工 1991年3月
耐震基準 新耐震基準
構造 鉄骨鉄筋コンクリート(SRC造)

物件詳細・設備

エレベーター 2基

ラグーン池袋ビルの空室一覧

↓ 募集区画クリックで詳細情報をご覧いただけます

募集区画 面積 用途 賃料+共益費 坪単価(共益費込) 入居時期 平面図 お気に入り
8階 居抜き 39.89坪 事務所 相談 - 即入居

近隣の条件が近い物件

東京都豊島区南池袋2丁目30-11

地上10階 / 地下1階

40.37坪

JR山手線 池袋駅 6分

東京都豊島区東池袋2丁目45-9

地上8階建て

37.69坪

JR山手線 池袋駅 10分

東京都豊島区東池袋1丁目40-2

地上7階 / 地下2階

45.0坪

JR山手線 池袋駅 3分

東京都豊島区西池袋1丁目16-1

地上9階 / 地下1階

36.47坪

JR山手線 池袋駅 1分

東京都豊島区南池袋2丁目35-4

地上8階 / 地下1階

44.3坪

東京メトロ有楽町線 東池袋駅 4分

東京都豊島区南池袋2丁目5-2

地上5階建て

43.48坪

東京メトロ有楽町線 東池袋駅 5分

東京都文京区大塚5丁目40-18

地上6階建て

41.28坪

東京メトロ有楽町線 護国寺駅 6分

東京都豊島区池袋4丁目32-8

地上6階建て

41.87坪

東武東上線 北池袋駅 7分

東京都豊島区西池袋2丁目29-19

地上11階 / 地下1階

35.68坪

JR山手線 池袋駅 3分

東京都豊島区南池袋2丁目32-12

地上9階建て

46.04坪

東京メトロ有楽町線 東池袋駅 3分

東京都文京区大塚6丁目37-5

地上8階 / 地下1階

36.86坪

東京メトロ有楽町線 東池袋駅 4分

東京都豊島区西池袋5丁目13-13

地上15階 / 地下2階

37.58坪

東京メトロ有楽町線 要町駅 5分

東京都豊島区南大塚3丁目11-9

地上7階建て

37.65坪

東京メトロ丸ノ内線 新大塚駅 4分

東京都豊島区南池袋2丁目12-5

地上9階建て

34.0坪

JR山手線 池袋駅 5分

東京都豊島区高松1丁目10-2

地上8階建て

40.0坪

東京メトロ有楽町線 要町駅 4分

東京都文京区大塚5丁目7-12

地上10階建て

41.26坪

東京メトロ丸ノ内線 新大塚駅 1分

東京都豊島区北大塚2丁目27-3

地上10階建て

37.84坪

JR山手線 大塚駅 3分

※表示金額はすべて「税抜き表示」となっています。 / ※間取図は現況を優先させていただきます。 / ※駐車場は建物設備としての有無のため、有の場合でも賃貸条件としての空きを保証するものではありません。 / ※掲載情報の誤りや変更、未掲載情報の掲載依頼がございましたら、お手数ですが お問い合わせフォーム よりご連絡ください。

掲載物件数:2,354件  4,249区画

お気に入りに追加