
賃貸条件
| 所在階 | 1階〜2階 |
|---|---|
| 用途 | 事務所、店舗 |
| 面積 | 436.89坪 / 1444.26m² |
| 賃料 | 相談 |
| 共益費 | 賃料に含む |
| 坪単価 | - |
| 預託金 | 10ヶ月 |
| 入居時期 | 相談 |
| トイレ | 男女別 |
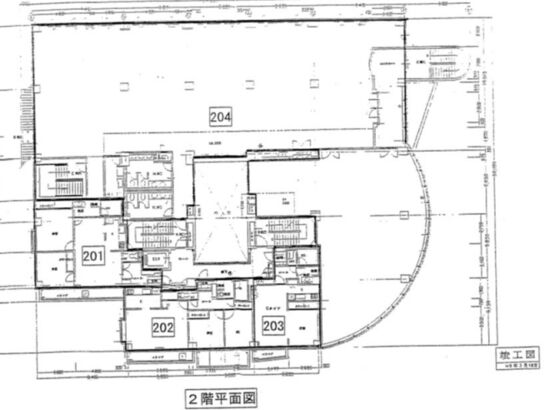
| その他 | 現況 1階レストラン・控室 2階会議室事務所/101 14.15坪、102 215.02坪、204 209.27坪 |
物件概要
| 所在地 | 東京都新宿区市谷仲之町4-39 |
|---|---|
| 交通 |
|
| 規模 | 地上6階 / 地下1階 |
| 竣工 | 1993年1月 |
| 耐震基準 | 新耐震基準 |
| 構造 | 鉄筋コンクリート(RC造) |
| 延床面積 | 4,780.83㎡ |
物件詳細・設備
| エレベーター | 調査中 |
|---|---|
| 駐車場 | あり 機械式10台 平置き3台 |
| 情報通信設備 | 光ファイバー |
| 空調 | 個別空調 |
| セキュリティ | 機械警備・有人管理 |
※表⽰⾦額は、敷⾦・保証⾦などの預かり⾦を除き、別途消費税がかかります。 / ※間取図は現況を優先させていただきます。 / ※駐車場は建物設備としての有無のため、有の場合でも賃貸条件としての空きを保証するものではありません。 / ※掲載情報の誤りや変更、未掲載情報の掲載依頼がございましたら、お手数ですが お問い合わせフォームよりご連絡ください。
近隣の条件が近い物件
掲載物件数:2,413件
4,380区画


























