NEW

NOVEL WORK AKIHABARA(旧:コマツビル) 5階

執務室・会議室フル什器付の、リニューアルセットアップオフィスが誕生予定!
最終情報更新日:2026/03/13
ビルコード: 1310103480
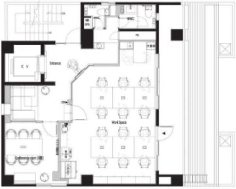
NOVEL WORK  AKIHABARA(旧:コマツビル) 5階 平面図

賃貸条件

所在階 5階 内装付
用途 事務所
面積 22.6坪 / 74.71m²
賃料 655,400円
共益費 賃料に含む
坪単価 28,999円/坪 (共益費込)
預託金 なし
入居時期 2026年7月下旬
その他費用 償却: なし
礼金: なし
更新料・再契約料: なし
トイレ 男女別
床仕様 OAフロア

物件概要

所在地 東京都千代田区神田佐久間町3丁目37-4
交通
  • JR山手線 秋葉原駅 4分
  • 都営新宿線 岩本町駅 6分
  • JR中央・総武線 浅草橋駅 7分
規模 地上6階建て
竣工 1985年8月
耐震基準 新耐震基準
構造 鉄筋コンクリート(RC造)

物件詳細・設備

エレベーター 1基
空調 個別空調
セキュリティ 機械警備
リニューアル履歴 2025年11月下旬 リニューアル完了予定

NOVEL WORK AKIHABARA(旧:コマツビル)の空室一覧

↓ 募集区画クリックで詳細情報をご覧いただけます

募集区画 面積 用途 賃料+共益費 坪単価(共益費込) 入居時期 平面図 お気に入り
NEW 5階 内装付 22.6坪 事務所 655,400円 28,999円/坪 2026年7月下旬
2階 内装付 33.54坪 事務所 972,660円 29,000円/坪 即入居
1階 内装付 28.45坪 事務所 825,050円 29,000円/坪 即入居

近隣の条件が近い物件

東京都千代田区岩本町3丁目8-11

地上8階建て

21.37坪

都営新宿線 岩本町駅 3分

東京都千代田区神田佐久間町1-11

地上10階 / 地下1階

22.09坪

JR山手線 秋葉原駅 1分

東京都千代田区岩本町3丁目9-4

地上7階建て

25.43坪

都営新宿線 岩本町駅 2分

東京都千代田区岩本町2丁目7-2

地上8階 / 地下1階

24.01坪

都営新宿線 岩本町駅 4分

東京都千代田区神田紺屋町15

地上10階 / 地下1階

23.27坪

JR山手線 神田駅 4分

東京都千代田区岩本町3丁目9-15

地上10階建て

19.13坪

都営新宿線 岩本町駅 2分

東京都台東区上野5丁目5-8

地上9階 / 地下1階

24.92坪

東京メトロ銀座線 末広町駅 6分

東京都中央区東日本橋2丁目2-10

地上6階 / 地下1階

22.81坪

都営浅草線 東日本橋駅 1分

東京都千代田区岩本町2丁目5-12

地上10階建て

19.52坪

都営新宿線 岩本町駅 3分

東京都千代田区岩本町2丁目11-3

地上8階 / 地下1階

25.82坪

都営新宿線 岩本町駅 4分

東京都千代田区内神田3丁目22-3

地上12階建て

22.12坪

JR山手線 神田駅 2分

東京都千代田区神田須田町1丁目4-6

地上7階 / 地下1階

23.24坪

東京メトロ丸ノ内線 淡路町駅 2分

東京都千代田区岩本町3丁目5-2

地上9階建て

27.76坪

都営新宿線 岩本町駅 3分

東京都千代田区神田須田町1丁目7-8

地上12階建て

19.3坪

東京メトロ銀座線 神田駅 2分

東京都中央区日本橋本町4丁目5-13

地上10階建て

20.37坪

総武線(快速) 新日本橋駅 3分

東京都千代田区神田岩本町1-23

地上14階 / 地下1階

16.95坪

都営新宿線 岩本町駅 1分

東京都千代田区神田司町2丁目10-4

地上10階建て

19.4坪

東京メトロ丸ノ内線 淡路町駅 2分

※表示金額はすべて「税抜き表示」となっています。 / ※間取図は現況を優先させていただきます。 / ※駐車場は建物設備としての有無のため、有の場合でも賃貸条件としての空きを保証するものではありません。 / ※掲載情報の誤りや変更、未掲載情報の掲載依頼がございましたら、お手数ですが お問い合わせフォーム よりご連絡ください。

掲載物件数:2,401件  4,337区画

お気に入りに追加