03-6264-1890
受付時間 9:00 - 18:30 定休日 土日祝
受付時間 9:00 - 18:30 定休日 土日祝
NOVEL WORK AKIHABARA(旧:コマツビル) 5階
物件情報
| 所在地 | 東京都千代田区神田佐久間町3丁目37-4 |
|---|---|
| 最寄駅 |
JR山手線 秋葉原駅 4分 都営新宿線 岩本町駅 6分 JR中央・総武線 浅草橋駅 7分 |
| 竣工 | 1985年8月 |
| 階数 | 地上6階建て |
| エレベーター | 1基 |
賃貸条件
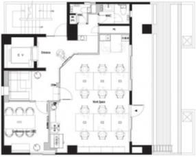
| 募集区画 | 5階 |
|---|---|
| 賃料 (共益費) | 655,400円(賃料に含む) |
| 敷金 /礼金 | なし/なし |
|
保証金
/敷引/償却 |
-/-/なし |
| 面積 | 22.6坪 |
| 入居条件 | 2026年7月下旬 |