MFビル(渋谷区) 3階

最終情報更新日:2025/12/25
ビルコード:1311303031
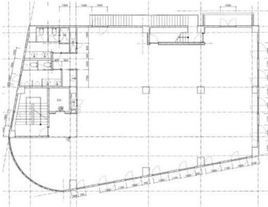
MFビル(渋谷区) 3階 平面図

賃貸条件

所在階3階
用途事務所、店舗
面積89.0坪 / 294.21m²
賃料2,225,000円
共益費賃料に含む
坪単価25,000円/坪(共益費込)
預託金8ヶ月
入居時期即入居
その他費用償却: なし
礼金: なし
更新料・再契約料: 1ヶ月
トイレ男女別

物件概要

所在地東京都渋谷区代々木1丁目6-12
交通
  • 小田急線 南新宿駅 3分
  • JR山手線 代々木駅 5分
  • 東京メトロ副都心線 北参道駅 9分
規模地上5階 / 地下1階
竣工1992年2月
耐震基準新耐震基準
構造鉄筋コンクリート(RC造)

物件詳細・設備

エレベーター1基
空調個別空調
セキュリティ機械警備

MFビル(渋谷区)の空室一覧

↓ 募集区画クリックで詳細情報をご覧いただけます

募集区画面積用途賃料+共益費坪単価(共益費込)入居時期平面図お気に入り
3階89.0坪事務所、店舗2,225,000円25,000円/坪即入居
2階91.2坪事務所、店舗2,280,000円25,000円/坪即入居

※表⽰⾦額は、敷⾦・保証⾦などの預かり⾦を除き、別途消費税がかかります。 / ※間取図は現況を優先させていただきます。 / ※駐車場は建物設備としての有無のため、有の場合でも賃貸条件としての空きを保証するものではありません。 / ※掲載情報の誤りや変更、未掲載情報の掲載依頼がございましたら、お手数ですが お問い合わせフォームよりご連絡ください。

近隣の条件が近い物件

東京都渋谷区代々木2丁目5-2

地上10階 / 地下1階

86.52坪

JR山手線 新宿駅 5分

東京都渋谷区千駄ヶ谷5丁目18-20

地上10階 / 地下1階

84.82坪

JR山手線 代々木駅 3分

東京都新宿区西新宿6丁目6-3

地上10階 / 地下2階

87.73坪

東京メトロ丸ノ内線 西新宿駅 2分

東京都新宿区西新宿3丁目7-30

地上12階 / 地下3階

93.2坪 〜 93.2坪

都営大江戸線 都庁前駅 9分

東京都新宿区新宿3丁目1-22

地上10階 / 地下2階

91.68坪

東京メトロ丸ノ内線 新宿三丁目駅 1分

東京都渋谷区千駄ヶ谷2丁目8-8

地上4階建て

92.71坪

東京メトロ副都心線 北参道駅 5分

東京都渋谷区渋谷1丁目20-1

地上6階 / 地下1階

89.04坪

JR山手線 渋谷駅 4分

東京都新宿区西新宿6丁目12-1

地上13階 / 地下2階

93.39坪

東京メトロ丸ノ内線 西新宿駅 3分

東京都新宿区西新宿2丁目7-1

地上26階 / 地下4階

95.2坪

都営大江戸線 都庁前駅 2分

東京都新宿区西新宿1丁目26-2

地上50階 / 地下5階

82.7坪

JR山手線 新宿駅 7分

東京都渋谷区神南1丁目15-1

地上6階建て

85.47坪

JR山手線 渋谷駅 8分

東京都渋谷区千駄ヶ谷4丁目4-4

地上6階建て

100.91坪

東京メトロ副都心線 北参道駅 3分

東京都新宿区西新宿7丁目5-25

地上16階 / 地下2階

84.18坪

西武新宿線 西武新宿駅 3分

東京都中野区本町1丁目32-2

地上29階 / 地下2階

85.26坪

東京メトロ丸ノ内線 中野坂上駅 1分

東京都新宿区西新宿1丁目19-5

地上9階 / 地下2階

100.39坪

JR山手線 新宿駅 2分

東京都渋谷区南平台町16-28

地上11階 / 地下1階

88.94坪

京王井の頭線 神泉駅 5分

東京都渋谷区神宮前6丁目25-16

地上6階 / 地下1階

94.82坪

東京メトロ千代田線 明治神宮前<原宿>駅 5分

東京都港区南青山5丁目9-20

地上9階建て

92.67坪 〜 92.67坪

東京メトロ銀座線 表参道駅 1分

掲載物件数:2,396件  4,347区画

お気に入りに追加