
賃貸条件
| 所在階 | 1階 |
|---|---|
| 用途 | 事務所、店舗 |
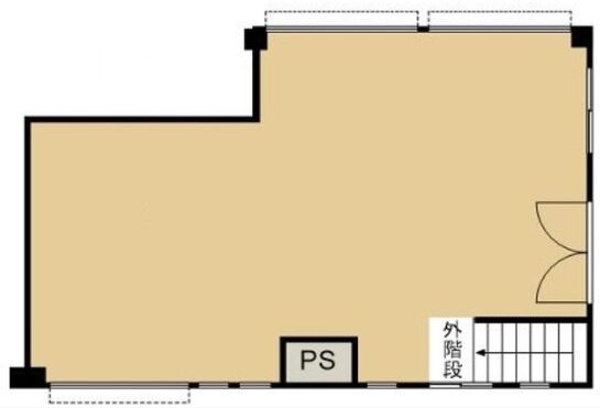
| 面積 | 22.08坪 / 72.99m² |
| 賃料 | 272,728円 |
| 共益費 | 賃料に含む |
| 坪単価 | 12,352円/坪(共益費込) |
| 預託金 | 5円 |
| 入居時期 | 相談 |
| その他費用 | 償却: なし 礼金: 2ヶ月 更新料・再契約料: 新賃料1ヶ月 |
| 天井高 | 3,150mm |
| その他 | スケルトン/室内トイレ |
物件概要
| 所在地 | 東京都江東区東陽5丁目31-5 |
|---|---|
| 交通 |
|
| 規模 | 地上4階建て |
| 竣工 | 1973年9月 |
| 構造 | 鉄骨鉄筋コンクリート(SRC造) |
| 基準階天井高 | 3,150mm |
物件詳細・設備
| エレベーター | なし |
|---|---|
| 駐車場 | なし |
ル・モンド三田の空室一覧
↓ 募集区画クリックで詳細情報をご覧いただけます
| 募集区画 | 面積 | 用途 | 賃料+共益費 | 坪単価(共益費込) | 入居時期 | 平面図 | お気に入り |
|---|---|---|---|---|---|---|---|
| 1階101 | 22.08坪 | 事務所、店舗 | 272,728円 | 12,352円/坪 | 相談 |
※表⽰⾦額は、敷⾦・保証⾦などの預かり⾦を除き、別途消費税がかかります。 / ※間取図は現況を優先させていただきます。 / ※駐車場は建物設備としての有無のため、有の場合でも賃貸条件としての空きを保証するものではありません。 / ※掲載情報の誤りや変更、未掲載情報の掲載依頼がございましたら、お手数ですが お問い合わせフォームよりご連絡ください。
近隣の条件が近い物件
掲載物件数:2,402件
4,376区画








