アプマージュ等々力 1階

最終情報更新日:2025/10/01
ビルコード:1311200151

賃貸条件

所在階1階
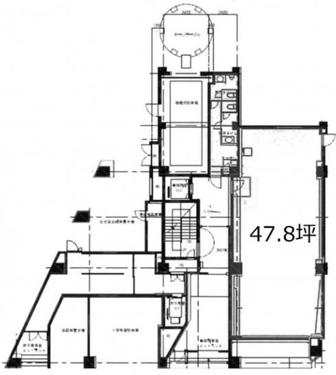
用途事務所
面積47.8坪 / 158.01m²
賃料相談
共益費相談
坪単価-
預託金相談
入居時期相談
天井高2,700mm

物件概要

所在地東京都世田谷区等々力7丁目2-5
交通
  • 東急大井町線 尾山台駅 12分
  • 東急大井町線 等々力駅 15分
規模地上8階 / 地下1階
竣工1997年5月
耐震基準新耐震基準
構造鉄骨鉄筋コンクリート(SRC造)
基準階坪数135.7坪
基準階天井高2,700mm

物件詳細・設備

エレベーター調査中
駐車場あり
空調個別空調

アプマージュ等々力の空室一覧

↓ 募集区画クリックで詳細情報をご覧いただけます

募集区画面積用途賃料+共益費坪単価(共益費込)入居時期平面図お気に入り
3階125.1坪事務所相談-相談
2階135.7坪事務所相談-相談
1階47.8坪事務所相談-相談
地下1階74.0坪事務所相談-相談

※表⽰⾦額は、敷⾦・保証⾦などの預かり⾦を除き、別途消費税がかかります。 / ※間取図は現況を優先させていただきます。 / ※駐車場は建物設備としての有無のため、有の場合でも賃貸条件としての空きを保証するものではありません。 / ※掲載情報の誤りや変更、未掲載情報の掲載依頼がございましたら、お手数ですが お問い合わせフォームよりご連絡ください。

近隣の条件が近い物件

東京都目黒区自由が丘2丁目11-16

地上5階 / 地下1階

44.86坪

東急東横線 自由が丘駅 2分

東京都目黒区自由が丘2丁目11-20

地上5階 / 地下1階

42.58坪 〜 44.57坪

東急東横線 自由が丘駅 2分

東京都目黒区自由が丘2丁目17-6

地上3階 / 地下1階

52.96坪

東急東横線 自由が丘駅 3分

東京都世田谷区太子堂1丁目12-39

地上7階 / 地下1階

48.85坪

東急世田谷線 三軒茶屋駅 5分

東京都目黒区碑文谷6丁目7-22

地上2階建て

53.84坪

東急東横線 学芸大学駅 4分

東京都世田谷区桜3丁目1-5

地上5階 / 地下1階

52.93坪

東急世田谷線 上町駅 8分

東京都世田谷区三軒茶屋2丁目2-16

地上12階建て

42.04坪

東急世田谷線 三軒茶屋駅 5分

東京都目黒区上目黒3丁目6-18

地上7階建て

46.79坪

東急東横線 中目黒駅 3分

東京都世田谷区用賀4丁目12-5

地上3階建て

58.02坪

東急田園都市線 用賀駅 3分

東京都渋谷区神泉町10-10

地上9階 / 地下1階

48.28坪

京王井の頭線 神泉駅 4分

東京都品川区西五反田7丁目22-17

地上13階 / 地下3階

47.05坪 〜 50.67坪

東急池上線 大崎広小路駅 5分

東京都目黒区下目黒3丁目7-2

地上9階建て

50.35坪

東急目黒線 不動前駅 8分

東京都品川区西五反田2丁目7-11

地上11階 / 地下1階

46.89坪

JR山手線 五反田駅 1分

東京都渋谷区代官山町2-63

地上5階建て

47.96坪

東急東横線 代官山駅 8分

東京都目黒区大岡山1丁目31-9

地上4階 / 地下1階

62.56坪

東急目黒線 大岡山駅 8分

東京都品川区西五反田3丁目6-32

地上4階 / 地下1階

45.4坪

JR山手線 五反田駅 7分

東京都品川区西五反田5丁目1-3

地上10階 / 地下2階

51.07坪

東急目黒線 不動前駅 3分

東京都品川区西五反田7丁目21-11

地上8階 / 地下2階

44.9坪

東急目黒線 不動前駅 5分

掲載物件数:2,246件  4,166区画

お気に入りに追加