NEW
ACN三田ビル(旧:UB.TASUKI MITA) 7階
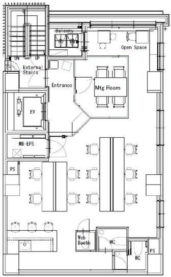
基準階、家具付セットアップオフィスの新築オフィスビルが誕生!
最終情報更新日:2026/04/06
ビルコード:
1310304350
賃貸条件
| 所在階 | 7階 内装付 |
|---|---|
| 用途 | 事務所 |
| 面積 | 22.94坪 / 75.83m² |
| 賃料 | 相談 |
| 共益費 | 賃料に含む |
| 坪単価 | - |
| 預託金 | 8ヶ月 |
| 入居時期 | 2026年9月上旬 |
| その他費用 |
更新料・再契約料: 1ヶ月
|
| トイレ | 男女別 |
| 床仕様 | OAフロア |
物件概要
| 所在地 | 東京都港区芝5丁目15-2 |
|---|---|
| 交通 |
|
| 規模 | 地上9階建て |
| 竣工 | 2024年6月 |
| 耐震基準 | 新耐震基準 |
| 構造 | 鉄筋コンクリート(RC造) |
物件詳細・設備
| エレベーター | 1基 |
|---|---|
| 空調 | 個別空調 |
| セキュリティ | 機械警備、EV不停止機能付 |
ACN三田ビル(旧:UB.TASUKI MITA)の空室一覧
↓ 募集区画クリックで詳細情報をご覧いただけます
| 募集区画 | 面積 | 用途 | 賃料+共益費 | 坪単価(共益費込) | 入居時期 | 平面図 | お気に入り |
|---|---|---|---|---|---|---|---|
| NEW 7階 内装付 | 22.94坪 | 事務所 | 相談 | - | 2026年9月上旬 |
|
※表示金額はすべて「税抜き表示」となっています。 / ※間取図は現況を優先させていただきます。 / ※駐車場は建物設備としての有無のため、有の場合でも賃貸条件としての空きを保証するものではありません。 / ※掲載情報の誤りや変更、未掲載情報の掲載依頼がございましたら、お手数ですが お問い合わせフォーム よりご連絡ください。
掲載物件数:2,331件
4,171区画