パティオクワトロ(パティオクアトロ・PATIO QUATTRO) 3階

最終情報更新日:2025/11/15
ビルコード:1311302950
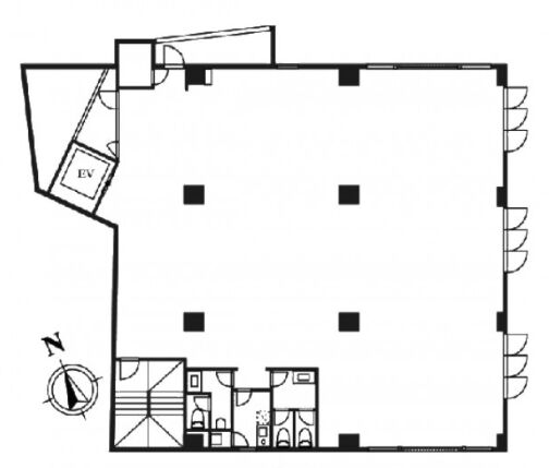
パティオクワトロ(パティオクアトロ・PATIO QUATTRO) 3階 平面図

賃貸条件

所在階3階
用途事務所
面積70.0坪 / 231.43m²
賃料2,170,000円
共益費賃料に含む
坪単価31,000円/坪(共益費込)
預託金6ヶ月
入居時期即入居
その他費用償却: 2ヶ月
礼金: 1ヶ月
更新料・再契約料: 1ヶ月

物件概要

所在地東京都渋谷区恵比寿4丁目5-27
交通
  • JR山手線 恵比寿駅 3分
  • 東急東横線 代官山駅 15分
規模地上2階 / 地下2階
竣工2015年4月
耐震基準新耐震基準
構造鉄筋コンクリート(RC造)
基準階坪数69.99坪

物件詳細・設備

エレベーター1基
駐車場なし
空調個別空調

パティオクワトロ(パティオクアトロ・PATIO QUATTRO)の空室一覧

↓ 募集区画クリックで詳細情報をご覧いただけます

募集区画面積用途賃料+共益費坪単価(共益費込)入居時期平面図お気に入り
3階70.0坪事務所2,170,000円31,000円/坪即入居
1階70.0坪事務所、店舗2,170,000円31,000円/坪即入居

※表⽰⾦額は、敷⾦・保証⾦などの預かり⾦を除き、別途消費税がかかります。 / ※間取図は現況を優先させていただきます。 / ※駐車場は建物設備としての有無のため、有の場合でも賃貸条件としての空きを保証するものではありません。 / ※掲載情報の誤りや変更、未掲載情報の掲載依頼がございましたら、お手数ですが お問い合わせフォームよりご連絡ください。

近隣の条件が近い物件

東京都渋谷区恵比寿1丁目15-1

地上6階建て

70.37坪

JR山手線 恵比寿駅 4分

東京都渋谷区東1丁目32-12

地上15階 / 地下2階

68.59坪

JR山手線 渋谷駅 4分

東京都渋谷区渋谷3丁目8-12

地上10階建て

69.28坪

JR山手線 渋谷駅 3分

東京都目黒区目黒1丁目6-17

地上14階 / 地下2階

73.61坪

JR山手線 目黒駅 6分

東京都港区南青山6丁目8-11

地上4階建て

71.67坪

東京メトロ銀座線 表参道駅 9分

東京都港区南青山5丁目13-3

地上9階 / 地下1階

68.48坪

東京メトロ千代田線 表参道駅 6分

東京都目黒区中目黒2丁目10-15

地上8階建て

75.33坪

東京メトロ日比谷線 中目黒駅 7分

東京都渋谷区広尾5丁目8-14

地上10階 / 地下1階

63.91坪

東京メトロ日比谷線 広尾駅 6分

東京都渋谷区渋谷1丁目2-5

地上14階 / 地下3階

71.29坪

JR山手線 渋谷駅 7分

東京都渋谷区恵比寿西1丁目20-5

地上10階建て

61.47坪

東京メトロ日比谷線 恵比寿駅 1分

東京都渋谷区恵比寿1丁目11-4

地上10階 / 地下1階

81.49坪

JR山手線 恵比寿駅 2分

東京都品川区西五反田7丁目20-9

地上8階 / 地下1階

70.79坪

東急目黒線 不動前駅 8分

東京都渋谷区恵比寿1丁目21-8

地上9階 / 地下1階

57.38坪

JR山手線 恵比寿駅 5分

東京都渋谷区渋谷2丁目3-5 COERU渋谷二丁目

地上10階建て

64.65坪

東京メトロ銀座線 渋谷駅 7分

東京都品川区東五反田1丁目7-6

地上7階 / 地下1階

72.39坪

JR山手線 五反田駅 3分

東京都渋谷区代官山13-1

地上2階 / 地下1階

79.58坪

東急東横線 代官山駅 4分

東京都渋谷区渋谷2丁目20-12

地上8階 / 地下1階

65.25坪

JR山手線 渋谷駅 2分

東京都港区高輪3丁目466-5(地番) アベニュー高輪

地上10階建て

70.99坪

JR山手線 品川駅 4分

掲載物件数:2,387件  4,348区画

お気に入りに追加