NEW

波崎ビル 3階

最終情報更新日:2026/03/07
ビルコード: 1310203925
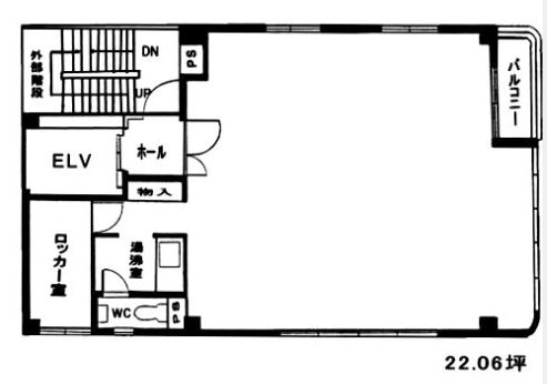
波崎ビル 3階 平面図

賃貸条件

所在階 3階
用途 事務所
面積 22.06坪 / 72.92m²
賃料 253,690円
共益費 44,120円
坪単価 13,500円/坪 (共益費込)
預託金 8ヶ月
入居時期 2026年3月下旬
その他費用 礼金: 1ヶ月
更新料・再契約料: なし

物件概要

所在地 東京都中央区新富2丁目3-7
交通
  • 東京メトロ有楽町線 新富町駅 1分
  • 都営浅草線 宝町駅 6分
規模 地上6階建て
竣工 1990年8月
耐震基準 新耐震基準
構造 鉄骨(S造)

物件詳細・設備

エレベーター 1基
情報通信設備 光ファイバー
空調 個別空調

波崎ビルの空室一覧

↓ 募集区画クリックで詳細情報をご覧いただけます

募集区画 面積 用途 賃料+共益費 坪単価(共益費込) 入居時期 平面図 お気に入り
NEW 3階 22.06坪 事務所 297,810円 13,500円/坪 2026年3月下旬

近隣の条件が近い物件

東京都中央区新富1丁目16-12

地上6階 / 地下1階

22.88坪

東京メトロ有楽町線 新富町駅 3分

東京都中央区新富2丁目4-5

地上8階建て

19.74坪

東京メトロ有楽町線 新富町駅 1分

東京都中央区銀座1丁目14-7

地上10階 / 地下1階

22.02坪

東京メトロ有楽町線 銀座一丁目駅 3分

東京都中央区築地3丁目5-10

地上7階 / 地下3階

23.45坪

東京メトロ日比谷線 築地駅 2分

東京都中央区銀座1丁目8-7

地上9階 / 地下1階

21.92坪

東京メトロ有楽町線 銀座一丁目駅 2分

東京都中央区京橋2丁目7-14

地上8階 / 地下1階

21.52坪

東京メトロ銀座線 京橋駅 2分

東京都中央区銀座4丁目10-10

地上11階 / 地下2階

20.58坪

東京メトロ日比谷線 東銀座駅 1分

東京都中央区湊3丁目3-3

地上4階建て

24.16坪

東京メトロ有楽町線 新富町駅 4分

東京都中央区八丁堀4丁目9-6

地上10階建て

24.06坪

東京メトロ日比谷線 八丁堀駅 1分

東京都中央区銀座4丁目14-8

地上10階建て

19.78坪

東京メトロ日比谷線 東銀座駅 1分

東京都中央区築地1丁目12-22

地上13階建て

19.17坪

東京メトロ日比谷線 東銀座駅 3分

東京都中央区八丁堀3丁目9-5

地上8階建て

25.05坪

都営浅草線 宝町駅 2分

東京都中央区銀座1丁目5-15

地上9階 / 地下1階

24.01坪

東京メトロ有楽町線 銀座一丁目駅 1分

東京都中央区銀座7丁目18-14

地上7階建て

21.97坪

都営大江戸線 築地市場駅 3分

東京都中央区新川2丁目18-10

地上10階建て

20.82坪

JR京葉線 八丁堀駅 3分

東京都中央区銀座2丁目8-5

地上9階 / 地下1階

18.62坪

東京メトロ有楽町線 銀座一丁目駅 1分

東京都中央区銀座1丁目18-6

地上9階 / 地下1階

17.5坪

東京メトロ銀座線 京橋駅 5分

東京都中央区八丁堀2丁目2-4

地上5階建て

24.9坪

JR京葉線 八丁堀駅 4分

東京都中央区築地1丁目5-11

地上6階 / 地下1階

27.28坪

東京メトロ有楽町線 新富町駅 4分

※表示金額はすべて「税抜き表示」となっています。 / ※間取図は現況を優先させていただきます。 / ※駐車場は建物設備としての有無のため、有の場合でも賃貸条件としての空きを保証するものではありません。 / ※掲載情報の誤りや変更、未掲載情報の掲載依頼がございましたら、お手数ですが お問い合わせフォーム よりご連絡ください。

掲載物件数:2,393件  4,305区画

お気に入りに追加