03-6264-1890
受付時間 9:00 - 18:30 定休日 土日祝
受付時間 9:00 - 18:30 定休日 土日祝
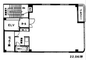
波崎ビル 3階
物件情報
| 所在地 | 東京都中央区新富2丁目3-7 |
|---|---|
| 最寄駅 |
東京メトロ有楽町線 新富町駅 1分 都営浅草線 宝町駅 6分 |
| 竣工 | 1990年8月 |
| 階数 | 地上6階建て |
| エレベーター | 1基 |
賃貸条件
| 募集区画 | 3階 |
|---|---|
| 賃料 (共益費) | 253,690円(44,120円) |
| 敷金 /礼金 | 8ヶ月/1ヶ月 |
|
保証金
/敷引/償却 |
なし |
| 面積 | 22.06坪 |
| 入居条件 | 2026年3月下旬 |