賃貸条件
| 所在階 | 4階 内装付 |
|---|---|
| 用途 | 事務所 |
| 面積 | 29.44坪 / 97.33m² |
| 賃料 | 相談 |
| 共益費 | 賃料に含む |
| 坪単価 | - |
| 預託金 | 6ヶ月 |
| 入居時期 | 2026年5月上旬 |
| その他費用 |
償却: なし
礼金: なし 更新料・再契約料: 新賃料1ヶ月 |
| トイレ | 男女別 |
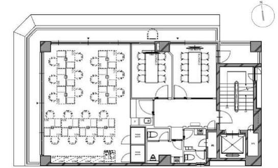
| その他 | 【内装付ハーフセットアップ】執務室20名想定、6名用会議室×2、個室ブース×2 |
物件概要
| 所在地 | 東京都港区芝大門1丁目6-1 |
|---|---|
| 交通 |
|
| 規模 | 地上5階 / 地下1階 |
| 竣工 | 1984年7月 |
| 耐震基準 | 新耐震基準 |
| 構造 | 鉄骨鉄筋コンクリート(SRC造) |
| 基準階天井高 | 2,800mm |
物件詳細・設備
| エレベーター | 1基 |
|---|---|
| 駐車場 | なし |
| 情報通信設備 | 光ファイバー |
| 空調 | 個別空調 |
| セキュリティ | 機械警備 |
| リニューアル履歴 | 2026年3月 大規模リニューアル予定 |
ARZ芝大門(芝大門PJ、旧:芝大門エフビル)の空室一覧
↓ 募集区画クリックで詳細情報をご覧いただけます
| 募集区画 | 面積 | 用途 | 賃料+共益費 | 坪単価(共益費込) | 入居時期 | 平面図 | お気に入り |
|---|---|---|---|---|---|---|---|
| NEW 4階 内装付 | 29.44坪 | 事務所 | 相談 | - | 2026年5月上旬 |
|
|
| 1階 | 28.58坪 | 事務所、店舗 | 相談 | - | 相談 |
|
※表示金額はすべて「税抜き表示」となっています。 / ※間取図は現況を優先させていただきます。 / ※駐車場は建物設備としての有無のため、有の場合でも賃貸条件としての空きを保証するものではありません。 / ※掲載情報の誤りや変更、未掲載情報の掲載依頼がございましたら、お手数ですが お問い合わせフォーム よりご連絡ください。
掲載物件数:2,353件
4,219区画