NEW

銀座新星ビル 4階401

最終情報更新日:2026/02/26
ビルコード: 1310203887
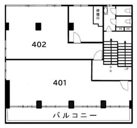
銀座新星ビル 4階401 平面図

賃貸条件

所在階 4階
用途 事務所
面積 15.27坪 / 50.47m²
賃料 320,800円
共益費 賃料に含む
坪単価 21,010円/坪 (共益費込)
預託金 6ヶ月
入居時期 2026年4月上旬
その他費用 償却: なし
礼金: 1ヶ月
更新料・再契約料: 1ヶ月
トイレ 男女別

物件概要

所在地 東京都中央区銀座6丁目12-7
交通
  • 東京メトロ銀座線 銀座駅 3分
  • JR山手線 新橋駅 8分
規模 地上5階 / 地下1階
竣工 1957年9月
構造 鉄筋コンクリート(RC造)

物件詳細・設備

エレベーター なし
情報通信設備 光ファイバー
空調 個別空調

銀座新星ビルの空室一覧

↓ 募集区画クリックで詳細情報をご覧いただけます

募集区画 面積 用途 賃料+共益費 坪単価(共益費込) 入居時期 平面図 お気に入り
NEW 4階401 15.27坪 事務所 320,800円 21,010円/坪 2026年4月上旬

近隣の条件が近い物件

東京都中央区銀座5丁目15-1

地上9階 / 地下4階

15.91坪

東京メトロ日比谷線 東銀座駅 1分

東京都中央区銀座2丁目12-10

地上7階 / 地下1階

15.8坪

都営浅草線 東銀座駅 2分

東京都中央区銀座2丁目16-7

地上5階 / 地下4階

15.0坪

東京メトロ有楽町線 新富町駅 3分

東京都中央区銀座7丁目15-9

地上9階建て

18.34坪

東京メトロ銀座線 銀座駅 4分

東京都中央区京橋3丁目1-1

地上24階 / 地下4階

15.12坪

東京メトロ銀座線 京橋駅 1分

東京都中央区京橋2丁目12-9

地上12階建て

15.35坪

都営浅草線 宝町駅 1分

東京都港区新橋1丁目16-10

地上8階 / 地下1階

17.75坪

東京メトロ銀座線 新橋駅 1分

東京都中央区銀座2丁目8-5

地上9階 / 地下1階

18.62坪

東京メトロ有楽町線 銀座一丁目駅 1分

東京都中央区銀座4丁目14-8

地上10階建て

19.78坪

東京メトロ日比谷線 東銀座駅 1分

東京都中央区築地1丁目12-22

地上13階建て

19.17坪

東京メトロ日比谷線 東銀座駅 3分

東京都港区西新橋2丁目23-2

地上10階 / 地下1階

15.28坪

都営三田線 内幸町駅 5分

東京都中央区銀座4丁目10-10

地上11階 / 地下2階

20.58坪

東京メトロ日比谷線 東銀座駅 1分

東京都中央区銀座1丁目18-6

地上9階 / 地下1階

17.5坪

東京メトロ銀座線 京橋駅 5分

東京都中央区銀座8丁目14-11

地上10階建て

20.96坪

東京メトロ日比谷線 東銀座駅 6分

東京都港区新橋2丁目4-7

地上15階 / 地下1階

17.93坪

都営三田線 内幸町駅 2分

※表示金額はすべて「税抜き表示」となっています。 / ※間取図は現況を優先させていただきます。 / ※駐車場は建物設備としての有無のため、有の場合でも賃貸条件としての空きを保証するものではありません。 / ※掲載情報の誤りや変更、未掲載情報の掲載依頼がございましたら、お手数ですが お問い合わせフォーム よりご連絡ください。

掲載物件数:2,407件  4,385区画

お気に入りに追加