NEW

ウィン青山 2階D+E

最終情報更新日:2026/03/13
ビルコード: 1310304211
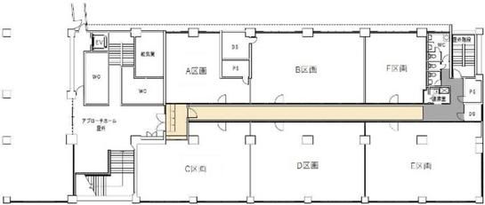
ウィン青山 2階D+E 平面図

賃貸条件

所在階 2階
用途 事務所
面積 70.88坪 / 234.31m²
賃料 1,701,120円
共益費 賃料に含む
坪単価 24,000円/坪 (共益費込)
預託金 4ヶ月
入居時期 2026年7月上旬
その他費用 償却: なし
礼金: なし
更新料・再契約料: なし
天井高 2,500mm
トイレ 男女別
床仕様 OAフロア

物件概要

所在地 東京都港区南青山2丁目2-15
交通
  • 東京メトロ半蔵門線 青山一丁目駅 2分
規模 地上14階 / 地下3階
竣工 1979年11月
構造 鉄骨鉄筋コンクリート(SRC造)
基準階坪数 188.35坪
基準階天井高 2,500mm

物件詳細・設備

エレベーター 2基
駐車場 あり
空調 個別空調
リニューアル履歴 2010年 リニューアル済

ウィン青山の空室一覧

↓ 募集区画クリックで詳細情報をご覧いただけます

募集区画 面積 用途 賃料+共益費 坪単価(共益費込) 入居時期 平面図 お気に入り
NEW 2階D+E 70.88坪 事務所 1,701,120円 24,000円/坪 2026年7月上旬
NEW 2階E 35.92坪 事務所 862,080円 24,000円/坪 2026年7月上旬
2階D 34.96坪 事務所 839,040円 24,000円/坪 即入居

近隣の条件が近い物件

東京都港区赤坂2丁目14-5

地上7階 / 地下2階

70.47坪

東京メトロ千代田線 赤坂駅 1分

東京都港区元赤坂1丁目5-7

地上8階建て

69.23坪

東京メトロ丸ノ内線 赤坂見附駅 3分

東京都渋谷区神宮前1丁目3-12

地上8階 / 地下1階

70.31坪

JR山手線 原宿駅 8分

東京都港区南青山6丁目8-11

地上4階建て

71.67坪

東京メトロ銀座線 表参道駅 9分

東京都港区南青山5丁目13-3

地上9階 / 地下1階

68.48坪

東京メトロ千代田線 表参道駅 6分

東京都港区赤坂9丁目5-24

地上5階 / 地下1階

78.64坪

東京メトロ千代田線 乃木坂駅 1分

東京都港区南青山2丁目26-37

地上9階建て

63.21坪

東京メトロ銀座線 外苑前駅 1分

東京都千代田区麹町3丁目2-1

地上10階 / 地下1階

71.23坪

東京メトロ有楽町線 麹町駅 3分

東京都港区赤坂5丁目5-13

地上8階建て

64.62坪

東京メトロ千代田線 赤坂駅 3分

東京都渋谷区渋谷1丁目7-6

地上9階建て

69.76坪

JR山手線 渋谷駅 5分

東京都港区赤坂7丁目5-17

地上3階 / 地下1階

62.38坪

東京メトロ千代田線 赤坂駅 7分

東京都渋谷区代々木1丁目20-3

地上5階建て

71.15坪

JR山手線 代々木駅 4分

東京都新宿区四谷4丁目28-8

地上10階 / 地下1階

69.03坪

東京メトロ丸ノ内線 新宿御苑前駅 5分

東京都新宿区四谷1丁目3

地上10階建て

68.27坪

東京メトロ南北線 四ツ谷駅 1分

※表示金額はすべて「税抜き表示」となっています。 / ※間取図は現況を優先させていただきます。 / ※駐車場は建物設備としての有無のため、有の場合でも賃貸条件としての空きを保証するものではありません。 / ※掲載情報の誤りや変更、未掲載情報の掲載依頼がございましたら、お手数ですが お問い合わせフォーム よりご連絡ください。

掲載物件数:2,360件  4,285区画

お気に入りに追加